Koravej - Dråby - 8400 - Ebeltoft

Objectnr: 048-84218
  • Personen
    10 personen
    waarvan 4 kinderen (0-11 jaar)
  • Slaapkamers3 Slaapkamers
  • Badkamers2 Badkamers
  • Woonoppervlakte123 m² Woonoppervlakte
  • Huisdieren2 Huisdieren

Beschrijving

De beschrijving is helaas niet beschikbaar in het Nederlands. Bekijk de tekst hieronder in het Duits of bekijk de automatisch vertaalde tekst in Nederlands.

Willkommen in diesem schönen Ferienhaus in Dråby, das viel Platz für Entspannung und gemeinsame Aktivitäten bietet. Nur einen kurzen Spaziergang vom Strand entfernt und mit mehreren Terrassen – darunter eine mit fantastischem Meerblick – ist dieses Ferienhaus die ideale Basis für einen erholsamen Urlaub. Es gibt drei Schlafzimmer und einen gemütlichen Hems, sodass die ganze Familie Platz findet. Außerdem erwarten dich Wellness-Extras wie eine Sauna und ein Whirlpool – perfekt, um einfach mal abzuschalten.

Willkommen in deinem Ferienhaus
Es erwartet dich ein großer, offener Wohnbereich, in dem du viele gemütliche Stunden mit Familie oder Freunden verbringen kannst. Die drei geräumigen Schlafzimmer bieten ausreichend Platz zum Entspannen und der Schlafboden/Hems eignet sich ideal für Kinder oder als zusätzliche Schlafmöglichkeit. Das Haus verfügt über zwei Badezimmer – eines davon mit Sauna und Whirlpool – ideal, um sich nach einem erlebnisreichen Tag zu verwöhnen. Die Küche ist vollständig ausgestattet, sodass du die Mahlzeiten ganz entspannt mit Blick auf die schöne Umgebung zubereiten kannst.

Genieße das Leben im Freien
Das Haus bietet mehrere Terrassen, auf denen du den ganzen Tag Sonne genießen kannst. Von der oberen Terrasse aus hast du einen herrlichen Meerblick – der perfekte Ort, um den Tag mit einer Tasse Kaffee zu beginnen oder ihn mit einem Glas Wein ausklingen zu lassen. Der Garten und die weiteren Terrassen laden zu Grillabenden, Entspannung und Spiel ein. Nach einem Tag am Strand kannst du dich in der Sauna oder im Whirlpool entspannen und das Urlaubsgefühl in vollen Zügen genießen.

Entdecke deine Umgebung
Da der Strand nur einen kurzen Spaziergang entfernt liegt, kannst du dich hier wunderbar entspannen oder aktiv im Wasser sein. Dråby und die Umgebung bieten außerdem viele spannende Naturerlebnisse und schöne Ausflugsziele. Ganz in der Nähe liegt das charmante Städtchen Ebeltoft, wo du durch kleine Gassen mit Läden und Cafés bummeln und Sehenswürdigkeiten wie die Fregatte Jylland oder das Glasmuseum entdecken kannst. Auch der Nationalpark Mols Bjerge ist leicht erreichbar und lädt zu herrlichen Wanderungen in einer einzigartigen Landschaft ein.


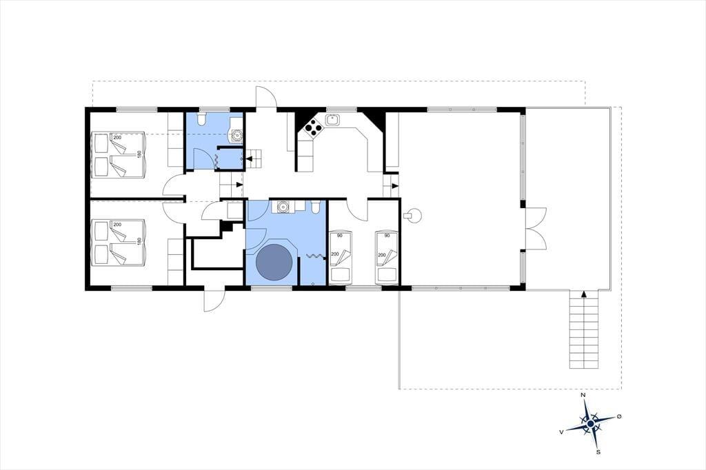
Raumaufteilung

  • Schlafzimmer
    • Doppelbett - 180x200
  • Schlafzimmer
    • Einzelbett - 90x200
    • Einzelbett - 90x200
  • Schlafzimmer
    • Doppelbett - 180x200
  • Schlafboden
    • Einzelmatratze - 80x200
    • Einzelmatratze - 80x200
    • Einzelmatratze - 80x200
    • Einzelmatratze - 80x200
7 nachten
Vanaf 684,-
Incl. schoonmaak en verzekering
6 volwassenen 4 kinderen

Prijzen en kalender

Duur
Personen
Aankomst
Volgende
   Kijk of het object beschikbaar is op de geselecteerde datum
Vrij
Bezet
   Aankomst mogelijk

Prijs

Periode
Aankomst
Vertrek
Duur
1 week
Personen
Geen personen geselecteerd

Let op

Aankomst is niet geselecteerd.
Er zijn geen personen geselecteerd.
Contract- en huurvoorwaarden

Indeling & inrichting

Ligging & omgeving

Locatie pin Kaart Denemarken

Klantenservice

Stel ons een vraag over dit object

Klik hier om ons een vraag over dit object te sturen.