Stranden - Ferring - 7620 - Lemvig

Objectnr: 325-188531
  • Personen
    6 personen
  • Slaapkamers2 Slaapkamers
  • Badkamers1 Badkamers
  • Woonoppervlakte96 m² Woonoppervlakte
  • Huisdieren2 Huisdieren

Beschrijving

De beschrijving is helaas niet beschikbaar in het Nederlands. Bekijk de tekst hieronder in het Duits of bekijk de automatisch vertaalde tekst in Nederlands.

Dieses teilweise neu renovierte Steinferienhaus liegt ganz oben an dem Teich dicht an der Nordsee mit freiem WLAN. Perfekt für Paare und auch für Familien mit bis zu 6 Personen.

Haus Einrichtung
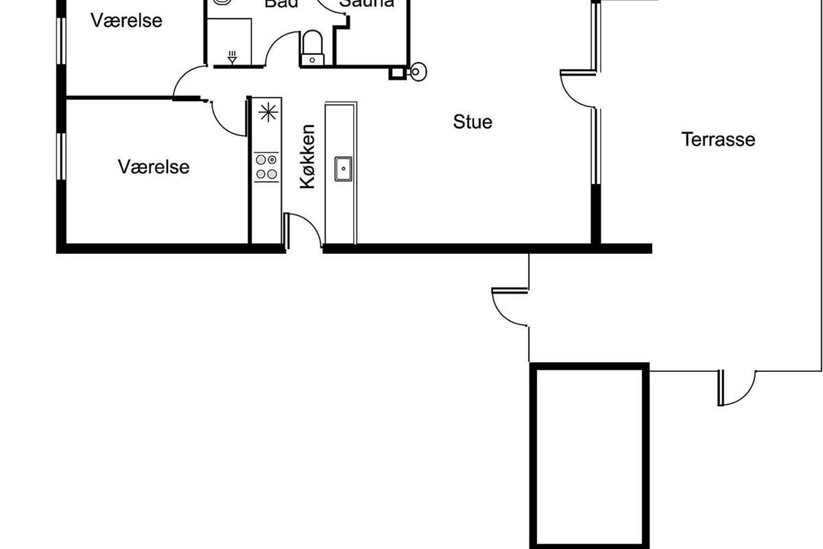
Geräumiges und teilweise neu renoviertes Ferienhaus auf 96 qm – im Jahr 1996 erbaut und teilweise renoviert in 2023 -. Schon wenn Sie Ihr Auto am Haus parken, werden Sie sehen, dass die Lage des Hauses etwas ganz besonderes ist. Das Haus ist praktisch eingerichtet mit Fliesenboden in allen Räumen: Wohnraum, Badezimmer und Schlafräumen. 2 Schlafräume: 1DB + 2B und ein Anbau mit 1DB. Wohnraum mit Polstermöbeln, neuem Esstisch, TV mit dänischen und deutschen Programmen und Radio/CD-Player und ein schöner Brennofen der immer für eine gute Wärme sorgt egal Jahreszeit. Ganz neue Küchenecke mit Herd mit Ceranfeld, Abzugshaube, Mikrowelle, Geschirrspüler und Kühlschrank mit Gefrierfach. Großes Badezimmer mit Toilette, Waschbecken, Dusche, Waschmaschine, Whirlpool und direkten Zugang zur Sauna. Max. 2 Haustiere sind erlaubt. Nichtraucher-Haus.

Haus Umgebung
Ausgang zur eingezäunten, teilweise überdachten Terrasse mit Gartenmöbeln und Grill. Das Haus liegt auf einem 4.000 qm großen Naturgrundstück bloß 100 m von der Nordsee entfernt und dicht am Ferring See. Laden Sie Ihre Batterien  mit einem guten Buch oder z. B. mit langen Wanderungen in ruhiger Umgebung auf. Genießen Sie die die Lage und das Rauschen von der Nordsee auf aber eingezäunten Terrasse, die  perfekt ist, wenn Sie Kinder oder Haustiere mitbringen. Besuchen Sie eine von den vielen Attraktionen, die Sie innerhalb von max. 30 Minuten erreichen können oder besuchen Sie das Fischerdorf Thyborøn oder die schöne Handelsstadt Lemvig mit vielen Spezialgeschäften. In den Sommermonaten können Sie Kleinigkeiten bei Bovbjerg Camping bekommen.

7 nachten
Vanaf 406,-
Incl. verzekering

Prijzen en kalender

Duur
Aankomst
Vorige Volgende
  • juni 2026
    madiwodovrzazo
    231234567
    24891011121314
    2515161718192021
    2622232425262728
    272930
    28
  • juli 2026
    madiwodovrzazo
    2712345
    286789101112
    2913141516171819
    3020212223242526
    312728293031
    32
   Kijk of het object beschikbaar is op de geselecteerde datum
Vrij
Bezet
   Aankomst mogelijk

Prijs

Periode
Aankomst
Vertrek
Duur
1 week
Personen
Tot 6 personen

Let op

Aankomst is niet geselecteerd.
Contract- en huurvoorwaarden

Indeling & inrichting

Ligging & omgeving

Locatie pin Kaart Denemarken

Onze gastbeoordelingen Externe beoordelingen

3,5 gemiddeld 4 waarderingen
5
(0)
4
(2)
3
(2)
2
(0)
1
(0)

Opmerkingen

Geen beoordelingen hebben commentaar op Nederlands
2 beoordelingen hebben commentaar in andere talen.

Klantenservice

Stel ons een vraag over dit object

Klik hier om ons een vraag over dit object te sturen.