Fløden - Fjellerup - 8585 - Glesborg

Objectnr: 125-8860
  • Personen
    8 personen
  • Slaapkamers4 Slaapkamers
  • Badkamers2 Badkamers
  • Woonoppervlakte124 m² Woonoppervlakte
  • Huisdieren2 Huisdieren

Beschrijving

De beschrijving is helaas niet beschikbaar in het Nederlands. Bekijk de tekst hieronder in het Duits of bekijk de automatisch vertaalde tekst in Nederlands.

Willkommen in deinem Ferienhaus
Dieses gepflegte, urgemütliche Blockhaus ist der Inbegriff von Ruhe, Wärme und Nähe. Die Sprossenfenster, die hübschen, hohen Decken und die Innenraumgestaltung verleihen dem Ferienhaus ein luftiges, helles Ambiente. Mitten im Haus begrüßt dich die ansprechende, funktionelle Küche, die zu entspannten Morgenstunden mit dem Duft frischgebrühten Kaffees und frischer Brötchen einlädt. Über der Küche befindet sich ein großer, schöner Hängeboden, den deine Kinder garantiert im Nu für sich beanspruchen und zu ihrem ganz eigenen Spielparadies erklären werden. Im riesigen Wohnraum laden gemütliche Sofas zum Relaxen ein. Auf den Sofas kannst du dich wunderbar mit einem spannenden Buch niederlassen, mit deinen Lieben Karten spielen oder einfach beim Ausblick in die Natur ringsum die Seele baumeln lassen. Vom Wohnraum trittst du hinaus auf einen große überdachte Terrasse, die sich selbst an Tagen mit nicht ganz so schönem Wetter als herrlicher Aufenthaltsort erweist und zu stimmungsvollen Abenden im Kreise deiner Familie einlädt. Mit zwei Badezimmern, vier einladenden Schlafräumen und einem Aktivitätsraum mit einem Tischkicker bieten sich beste Möglichkeiten für das wertvolle Beisammensein, aber auch für ruhige, zurückgezogene Momente. Eines der beiden Badezimmer verwöhnt dich nach langen Urlaubstagen übrigens mit einer schönen Whirlpoolwanne.

Genieße das Leben im Freien
Unter freiem Himmel erwartet dich eine wahre Urlaubsoase. Schöne Terrassen umgeben nahezu das gesamte Haus. Du erfreust dich an vielen überdachten Eckchen, in denen du dich gut vor Sonne und Regen geschützt aufhältst - ohne dabei auf Licht und Wärme zu verzichten. Der teilweise geschlossene Garten präsentiert sich als grüne, ungestörte Oase. Er ist gepflegt und bietet viel Platz zum Spielen und Erholen. Hier wurde an wirklich alles gedacht: Von gemütlichen Sitzecken über blühende Büsche bis zu einem Spielturm, einer Sandkiste und einer spannenden Höhle, die darauf wartet, von deinen Kindern weitergebaut zu werden. Kinder und Erwachsene finden auf diesem Grundstück Ruhe und Erlebnismöglichkeiten sowie beste Voraussetzungen für das wertvolle Beisammensein mit den Lieben. Du darfst dich also auf viele stimmungsvolle kleine Momente freuen, die euch allen ewig in schöner Erinnerung bleiben.

Entdecke deine Umgebung
Fjellerup Strand ist ein stimmungsvoller, alter Fischerort an der Nordküste Djursland, der sich im Laufe der Zeit zu einem überaus gefragten Urlaubsgebiet entwickelt hat. Die Dänen lieben ihr Fjellerup für dessen Natur, die Ruhe und das entspannte Leben an der Küste. Dir wird es garantiert nicht anders gehen. Der Strand eignet sich aufgrund seines flachen, ruhigen Wassers und des sandigen Untergrunds hervorragend zum Baden, Spielen Erholen unter freiem Himmel.

Die Umgebung Fjellerups beeindruckt mit abwechslungsreicher, hübscher Natur. Zahllose kleine Wege und Pfade laden zu langen Radtouren, Wanderungen und Spaziergängen im Grünen ein. Entlang der Küste treffen Angler auf hervorragende Fangplätze. Die meist guten Windbedingungen ziehen seit jeher Surfer uns nah und fern magisch an.

Nach kurzer Fahrzeit erreichst du mit deiner Familie interessante Sehenswürdigkeiten und Touristenattraktionen. Zu diesen zählen das malerische Schloss Mejlgård, die beeindruckenden vorzeitlichen Steindolmen bei Tustrup und natürlich der größte Vergnügungspark des Nordens - das Djurs Sommerland, das große und kleine Besucher gleichermaßen begeistert. Nordischen Tieren wie Elchen, Bären und Wölfen kommt ihr im interessanten Skandinavisk Dyrepark ganz nah. In Grenaa freut sich darüber hinaus das Kattegatcentret mit lustigen Pinguinen, großen Haien, niedlichen Robben und zahllosen anderen farbenfrohen Bewohnern der Weltmeere auf euren Besuch. Ganz Djursland überzeugt nicht nur mit reizvoller Natur und Landschaft, sondern zugleich mit vielfältigen Erlebnis- und Aktivitätsmöglichkeiten für jeden Geschmack.


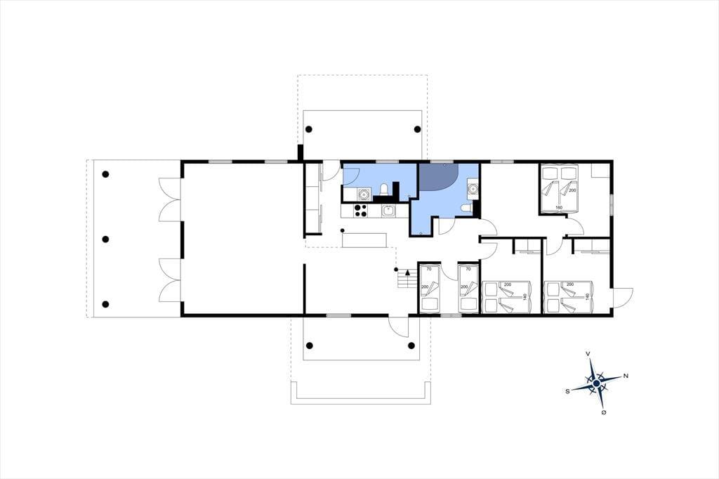
Raumaufteilung

  • Schlafzimmer
    • Doppelbett - 140 x 200
  • Schlafzimmer
    • Einzelbett - 70 x 200
    • Einzelbett - 70 x 200
  • Schlafzimmer
    • Doppelbett - 140 x 200
  • Schlafzimmer
    • Doppelbett - 160 x 200
7 nachten
Vanaf 940,-
Incl. schoonmaak en verzekering

Prijzen en kalender

Duur
Aankomst
Vorige Volgende
  • juni 2026
    madiwodovrzazo
    231234567
    24891011121314
    2515161718192021
    2622232425262728
    272930
    28
  • juli 2026
    madiwodovrzazo
    2712345
    286789101112
    2913141516171819
    3020212223242526
    312728293031
    32
   Kijk of het object beschikbaar is op de geselecteerde datum
Vrij
Bezet
   Aankomst mogelijk

Prijs

Periode
Aankomst
Vertrek
Duur
1 week
Personen
Tot 8 personen

Let op

Aankomst is niet geselecteerd.
Contract- en huurvoorwaarden

Indeling & inrichting

Ligging & omgeving

Locatie pin Kaart Denemarken

Klantenservice

Stel ons een vraag over dit object

Klik hier om ons een vraag over dit object te sturen.