Ruim vakantiehuis met activiteiten en bubbelbad
Thorupvej - Gøttrup - 9670 - Løgstør
Objectnr: 121-16-1855
Ruim vakantiehuis in Denemarken met activiteitenruimte en bubbelbad, ideaal voor groepen en gezinnen.
Beschrijving
Inrichting
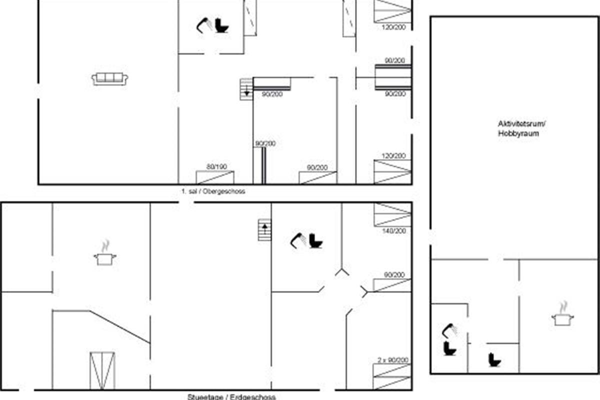
Vakantiehuis is geschikt voor 20 personen en 2 kinderen tot 3 jaar. De vakantiewoning heeft een oppervlakte van 588 m2, bestaat uit 2 verdiepingen, en is gebouwd in 2007. In 2015 ondergingen de vakantiewoning een gedeeltelijke renovatie. Het is toegestaan om 2 huisdieren mee te nemen. Vloerverwarming in alle stenen vloeren. De vakantiewoning heft Wasmachine. Wasdroge. Vriezer capaciteit van 250 liter. Voor de kleintjes 2 stukken Kinderstoel.
Buiten
De vakantiewoning is gelegen op een 4000 m² groot natuural grond. Afstand tot de zee 20000 m. Afstand tot de fjord 3000 m. Dichtstbijzijnde winkel 10000 m. Bij de vakantiewoning hoort 100 m² terras. Schommel. Voetbaldoel. Parkeerplaats bij het huis.
Activiteitenruimte
Activiteitenruimte. Biljart.Tafeltennis. Dart. Tafelvoetbal. Minivoetbaltafel.
Slaapomstandigheden
Er zijn in totaal 6 slaapkamers. De slaapplaatsen zijn als volgt verdeeld: 10 slaapplaatsen in tweepersoonsbedden.1 slaapplaats in eenpersoonsbed. 8 slaapplaatsen in stapelbedden. 3 slaapplaatsen in slaapbanken (eenpersons). Verder sijn ook 2 stukken kinderbed ter beschikking.
Keuken
De keuken is uitgerust met 3 koelkasten Er is 4 elektrische kookplaten Er zijn 8 keramische kookplaten Es is 4 gaspitten, heteluchtoven, magnetron en vaatwasser.
Douche en toilet
Er is 3 badkamers met douchehok en 4 toiletten, waarvan 1 gastentoilet. Er is vloerverwarming in 1 badkamer.
Bubbelbad
Het binnenbubbelbad (vulwater) biedt ontspanning aan 2 personen.
Multimedia
In de vakantiewoning is aanwezig 3 televisies. DVD-speler. Radio. CD-speler.Playstation1. Nintendo Wii. X-box. Tenminste 4 deense zenders. Draadloos internet.
Goed om te weten
Youth groups (15-25 years of age) not allowed. You will find a separate smoking room in connection with the activity room.
Vakantiehuis is geschikt voor 20 personen en 2 kinderen tot 3 jaar. De vakantiewoning heeft een oppervlakte van 588 m2, bestaat uit 2 verdiepingen, en is gebouwd in 2007. In 2015 ondergingen de vakantiewoning een gedeeltelijke renovatie. Het is toegestaan om 2 huisdieren mee te nemen. Vloerverwarming in alle stenen vloeren. De vakantiewoning heft Wasmachine. Wasdroge. Vriezer capaciteit van 250 liter. Voor de kleintjes 2 stukken Kinderstoel.
Buiten
De vakantiewoning is gelegen op een 4000 m² groot natuural grond. Afstand tot de zee 20000 m. Afstand tot de fjord 3000 m. Dichtstbijzijnde winkel 10000 m. Bij de vakantiewoning hoort 100 m² terras. Schommel. Voetbaldoel. Parkeerplaats bij het huis.
Activiteitenruimte
Activiteitenruimte. Biljart.Tafeltennis. Dart. Tafelvoetbal. Minivoetbaltafel.
Slaapomstandigheden
Er zijn in totaal 6 slaapkamers. De slaapplaatsen zijn als volgt verdeeld: 10 slaapplaatsen in tweepersoonsbedden.1 slaapplaats in eenpersoonsbed. 8 slaapplaatsen in stapelbedden. 3 slaapplaatsen in slaapbanken (eenpersons). Verder sijn ook 2 stukken kinderbed ter beschikking.
Keuken
De keuken is uitgerust met 3 koelkasten Er is 4 elektrische kookplaten Er zijn 8 keramische kookplaten Es is 4 gaspitten, heteluchtoven, magnetron en vaatwasser.
Douche en toilet
Er is 3 badkamers met douchehok en 4 toiletten, waarvan 1 gastentoilet. Er is vloerverwarming in 1 badkamer.
Bubbelbad
Het binnenbubbelbad (vulwater) biedt ontspanning aan 2 personen.
Multimedia
In de vakantiewoning is aanwezig 3 televisies. DVD-speler. Radio. CD-speler.Playstation1. Nintendo Wii. X-box. Tenminste 4 deense zenders. Draadloos internet.
Goed om te weten
Youth groups (15-25 years of age) not allowed. You will find a separate smoking room in connection with the activity room.
7 nachten
Vanaf
€ 2.863,-
Incl. schoonmaak en consumptie
Prijzen en kalender
Prijs
Periode
- Aankomst
- Vertrek
- Duur
- 1 week
Personen
Tot 20 personen
Let op
Aankomst is niet geselecteerd.
Opmerkingen