Dortevej - Gjerrild - 8500 - Grenå

Objectnr: 125-8536
  • Personen
    6 personen
    waarvan 2 kinderen (0-11 jaar)
  • Slaapkamers3 Slaapkamers
  • Badkamers1 Badkamers
  • Woonoppervlakte90 m² Woonoppervlakte
  • Huisdieren1 Huisdieren

Beschrijving

De beschrijving is helaas niet beschikbaar in het Nederlands. Bekijk de tekst hieronder in het Deens of bekijk de automatisch vertaalde tekst in Nederlands.

Velkommen indenfor

Forestil dig at træde ind i et klassisk, charmerende dansk sommerhus, der med det samme indfanger essensen af feriestemning. Her mødes fortidens sjæl med nutidens komfort på den fineste måde. Det lyse og moderne køkken står skarpt og er nyt, klar til at danne rammen om hyggelige måltider efter en dag fyldt med eventyr. Badeværelset er også nyt og er en lille luksus midt i den autentiske sommerhusidyl.

Resten af huset er en kærlig blanding af gammelt og nyt. Møblerne fortæller hver sin historie, og det hele smelter sammen i en varm og indbydende atmosfære. De originale, lakerede trægulve knirker let, som de har gjort det i generationer, og de synlige loftsbjælker under loftet til kip minder om en tid, hvor ting blev bygget med hænder og hjerte. De indvendige skydedøre giver plads og frihed – lige det, der er brug for på ferien.

I det store soveværelse står en skøn kingsize dobbeltseng og venter på dig, mens vinduet åbner op til den grønne natur have, hvor morgensolen spiller i træerne. De to andre soveværelser er lige så hyggelige – det ene med to enkeltsenge, perfekt til venner eller teenagere, og det andet som børnenes fristed med en enkeltseng og en hyggelig madras på hemsen.

Det er et sted, hvor minder skabes, og hjerter finder ro.

Nyd livet udenfor

Naturen og havet er nærmest er dine nærmeste naboer. Her er du i første række til stranden, som blot ligger 400 meter væk, lige på den anden side af strandengen foran huset. Stranden har det eftertragtede Blå Flag, der lover klart vand og gode badeoplevelser for både store og små. Grunden er næsten 3000 kvadratmeter, så her er masser af plads til at boltrer sig på og du finder nemt din yndlingsplet. Omkring huset er der meget terrasse og masser af sol- og læ kroge, hvor du både kan nyde morgenkaffen og et glas lækker vin og grill til solnedgangen.

Kom tæt på de lokale oplevelser

Gjerrild Nordstrand er en perle på Djurslands nordkyst, kendt for sin skønne badestrand, hvor du kan tage en dukkert eller kaste snøren ud og fange din egen aftensmad. Området er indhyllet i smukke løvskove, der fortryller på alle tider af året. De mange vandre- og cykelstier langs nordkysten giver mulighed for at kombinere naturoplevelser med motion – og her føles motion mere som en gave end en straf. Om sommeren kan du nyde frisk morgenbrød, is eller sprøde pommes frites fra campingpladsen, der ligger et lille stykke fra huset. Gjerrild Nordstrand har desuden en spændende historie som gammelt ralleje, hvilket har resulteret i et smukt og kuperet strandlandskab. Engang passerede jernbanen fra Grenå her, før den fortsatte videre ud i det smukke Djursland. Den historiske forbindelse kan stadig mærkes, når du bevæger dig gennem området, der bærer præg af fortidens liv og aktivitet. På vejen til stranden kører du gennem Gjerrild by – en hyggelig, lille landsby med en charmerende kirke med smukke kalkmalerier, egen købmand og den lokale kro. Kroen er kendt for sine lækre danske retter, og lige bag den finder du det imponerende Sostrup Slot, der oser af historie. Fra Gjerrild er der cirka 15 kilometer til Grenå, hvor du kan slentre gennem de hyggelige gågader med fortovscaféer og shoppe lidt ferieindkøb. Gå ikke glip af et besøg i Kattegatcentret, hvor hajer og pingviner venter på at fascinere både store og små. Er du til eventyr, kan du også tage færgen til Anholt eller Sverige. Snyd ikke børnene for en dag i Djurs Sommerland, der er nordens største forlystelsespark og har det med, at finde på en ny aktivitet hvert år. Kun en times kørsel væk finder du den gamle købstad Ebeltoft, Nationalpark Mols Bjerge og Ree Park.


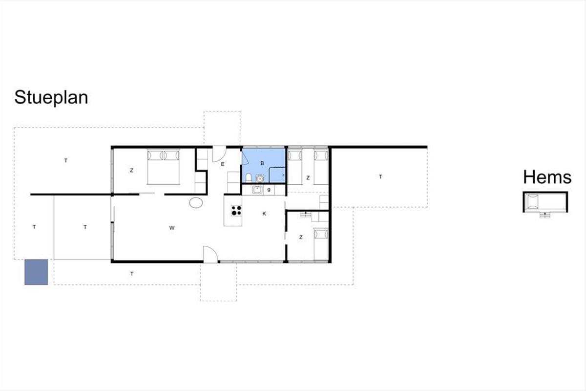
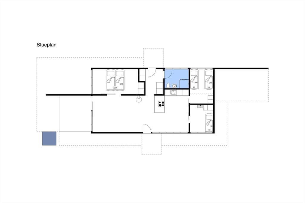
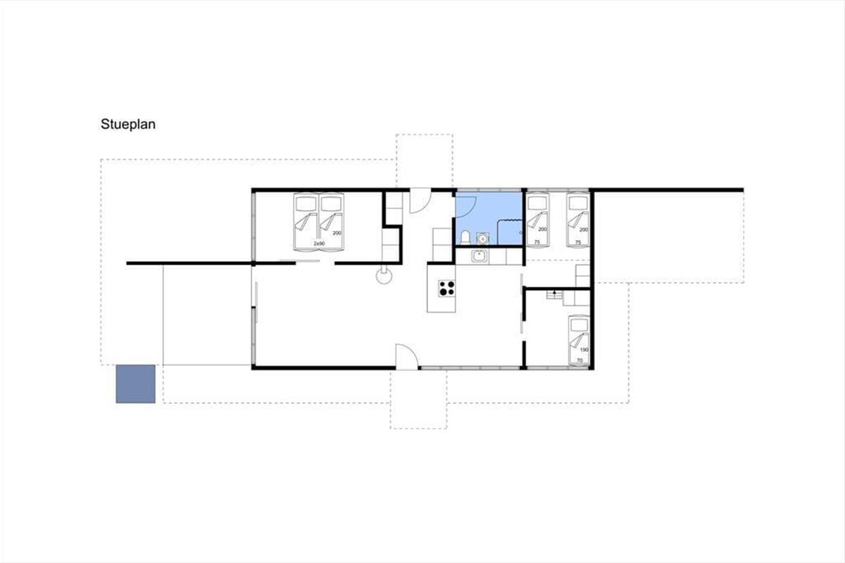
Rumindretning

  • Soveværelse
    • Enkelt seng - 75x200
    • Enkelt seng - 75x200
  • Soveværelse
    • Enkelt seng - 70x190
    • Enkelt madras - 75x190
  • Soveværelse
    • Dobbeltseng - 2x90x200
7 nachten
Vanaf 429,-
Incl. schoonmaak en verzekering
4 volwassenen 2 kinderen

Prijzen en kalender

Duur
Personen
Aankomst
Volgende
   Kijk of het object beschikbaar is op de geselecteerde datum
Vrij
Bezet
   Aankomst mogelijk

Prijs

Periode
Aankomst
Vertrek
Duur
1 week
Personen
Geen personen geselecteerd

Let op

Aankomst is niet geselecteerd.
Er zijn geen personen geselecteerd.
Contract- en huurvoorwaarden

Indeling & inrichting

Ligging & omgeving

Locatie pin Kaart Denemarken

Klantenservice

Stel ons een vraag over dit object

Klik hier om ons een vraag over dit object te sturen.