Stenurtsvej - Grærup - 6840 - Oksbøl

Objectnr: 328-159205
  • Personen
    2 personen
  • Slaapkamers1 Slaapkamers
  • Badkamers1 Badkamers
  • Woonoppervlakte75 m² Woonoppervlakte
  • HuisdierenNiet toegestaan Huisdieren

Beschrijving

De beschrijving is helaas niet beschikbaar in het Nederlands. Bekijk de tekst hieronder in het Engels of bekijk de automatisch vertaalde tekst in Nederlands.

Perfect for a couple's getaway, this holiday home at Stenurtsvej 6 in Grærup Strand sits directly behind the dunes, just 200 metres from the North Sea. Renovated in 2022, it guarantees pure nature, peace and relaxation amidst the stunning Danish west coast surroundings. An ideal holiday retreat for those seeking minimalism, nature and seclusion for their Danish holiday.

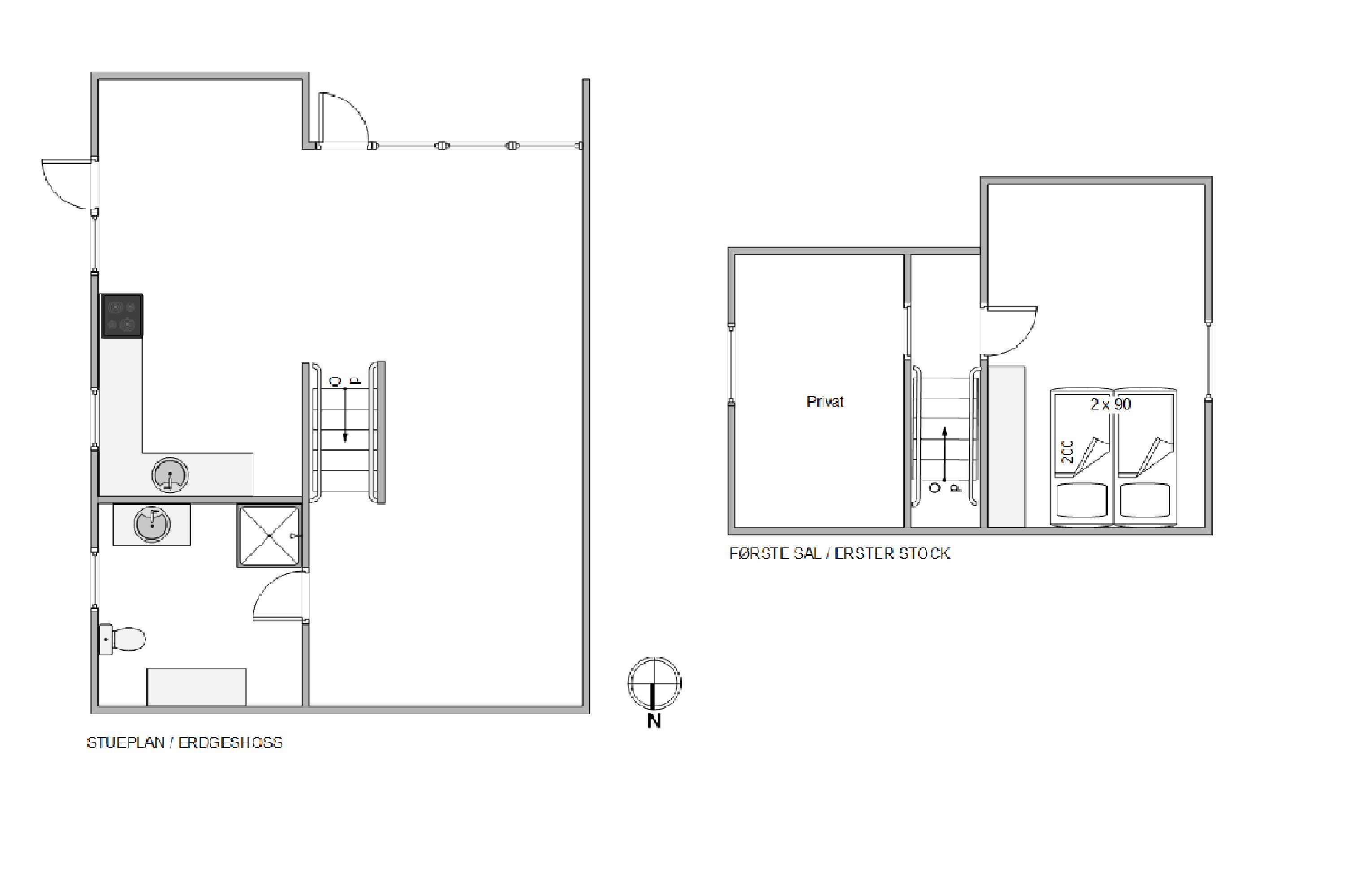
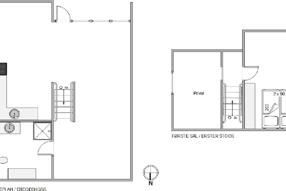
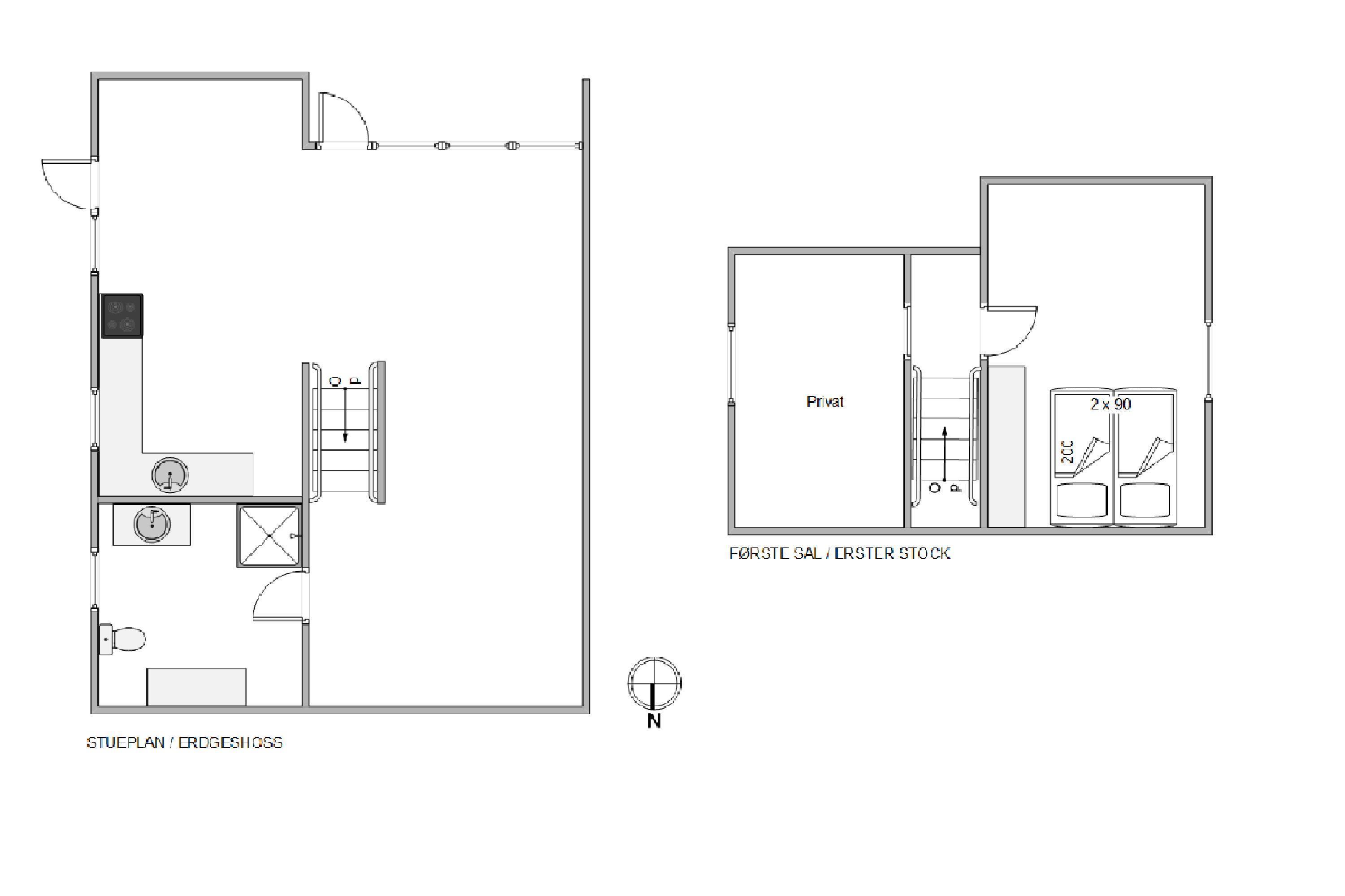
Living with dune views

This holiday home offers a programme of relaxation, comfort and tranquility. Far from the bustle of everyday life, you can truly unwind and look forward to quality time together. From the cosy living area with open-plan kitchen and dining space, you'll enjoy magnificent views across the expansive dune landscape of Grærup Strand. Settle into the seating area by the floor-to-ceiling windows with a cup of tea and savour the panoramic views. During twilight hours, you might even spot some of the local woodland wildlife.

Upstairs, the bedroom beneath the sloping roof is truly 'hyggeligt' (cosy). Open the window slightly and let the sound of the North Sea lull you to sleep. The bedroom also features a sofa, offering an additional space for relaxation.

The newly renovated bathroom welcomes you with modern amenities and comforting underfloor heating.

The holiday home features an energy-efficient heat pump, allowing you to easily and economically maintain your preferred temperature throughout.

Natural surroundings with sheltered terrace

Wake up, slip on your bathrobe, walk over the dunes for a dip in the North Sea waves, then return to enjoy your morning coffee on the house terrace - this could become your holiday ritual. The holiday home offers both open and sheltered terraces, ensuring you'll always find the perfect spot regardless of wind and weather. A practical gas barbecue is also provided! Perfect for sunset barbecues with a chilled glass of rosé.

Garden furniture and barbecue are stored in the shed next to the house.

North Sea beach, cycling and walking paths nearby

Your holiday truly begins when you set your gaze on the North Sea horizon. From this holiday home, that's just moments away. Simply cross the dunes to take a deep breath of salty sea air and enjoy the expansive views. It's relaxation for both eyes and soul.

Do bring your bicycles. Grærup offers numerous excellent cycling routes in all directions. Cycling allows you to experience the diverse nature of the Danish west coast even more intensively.

Grærup is also an angler's paradise. The large fishing lake, nestled in beautiful heathland and dune landscape, is home to several freshwater fish species. And don't forget, Blåvand with its many shops, restaurants and attractions is easily accessible by car.

De prijs kan niet worden berekend met de geselecteerde periode.

Prijzen en kalender

Duur
Aankomst
Volgende
  • maart 2026
    madiwodovrzazo
    91
    102345678
    119101112131415
    1216171819202122
    1323242526272829
    143031
  • april 2026
    madiwodovrzazo
    1412345
    156789101112
    1613141516171819
    1720212223242526
    1827282930
    19
   Kijk of het object beschikbaar is op de geselecteerde datum
Vrij
Bezet
   Aankomst mogelijk

Prijs

Periode
Aankomst
Vertrek
Duur
Personen
Tot 2 personen

Let op

Aankomst is niet geselecteerd.
Duur is niet geselecteerd.
Contract- en huurvoorwaarden

Indeling & inrichting

Ligging & omgeving

Locatie pin Kaart Denemarken

Klantenservice

Stel ons een vraag over dit object

Klik hier om ons een vraag over dit object te sturen.