Augustvej - Handrup - 8400 - Ebeltoft
Objectnr: 045-552168
Beschrijving
De beschrijving is helaas niet beschikbaar in het Nederlands. Bekijk de tekst hieronder in het Engels of bekijk de automatisch vertaalde tekst in Nederlands.
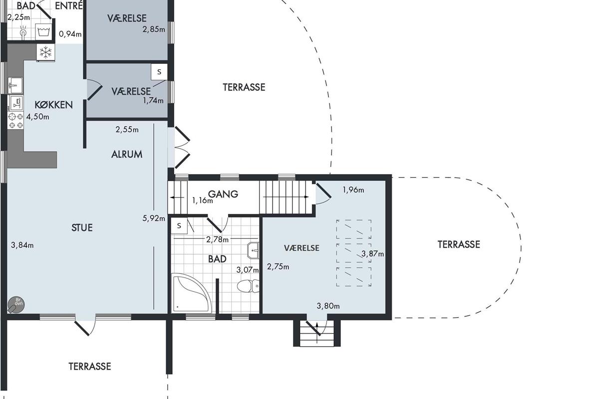
In the beautiful and peaceful area of Handrup Hills, you’ll find this older yet extremely cozy split-level holiday home. The house features a charmingly furnished living room with a wood-burning stove and a heat pump, as well as access to a lovely terrace. Adjacent to the living room is a stylish kitchen from 2022, along with a cozy dining nook, where you can also access another terrace.
The sleeping arrangements are divided between two bedrooms on the upper level, including one bedroom with a double bed and another with bunk beds. On the lower level, there is a large bedroom with two single beds. The house includes two bathrooms: one with a shower niche on the upper level, and another with a spa bath on the lower level. There is also a washing machine available. For the youngest guests, a high chair and a baby cot are provided. If you are travelling with multiple families, we also rent out the house directly across the street, property number 18902.
The house is set on a lovely plot with a large lawn, perfect for playing and outdoor activities.
Handrup Hills is a beautiful natural area located in hilly terrain. The area is peaceful and very child-friendly, with trails that make it easy to reach the beach. The beach is a child-friendly sandy beach with shallow water and a sandy bottom. The area is close to the Mols Bjerge National Park and Ebeltoft town.
In Ebeltoft, you’ll find many attractions, including the Jutland Frigate, the Old Town Hall, and the Glass Museum. The town offers many small specialty shops and cozy sidewalk cafés in its cobblestone streets.
It’s about a 30-minute drive to Djurs Sommerland, Northern Europe’s largest amusement park, and the Kattegat Center in Grenaa.
The sleeping arrangements are divided between two bedrooms on the upper level, including one bedroom with a double bed and another with bunk beds. On the lower level, there is a large bedroom with two single beds. The house includes two bathrooms: one with a shower niche on the upper level, and another with a spa bath on the lower level. There is also a washing machine available. For the youngest guests, a high chair and a baby cot are provided. If you are travelling with multiple families, we also rent out the house directly across the street, property number 18902.
The house is set on a lovely plot with a large lawn, perfect for playing and outdoor activities.
Handrup Hills is a beautiful natural area located in hilly terrain. The area is peaceful and very child-friendly, with trails that make it easy to reach the beach. The beach is a child-friendly sandy beach with shallow water and a sandy bottom. The area is close to the Mols Bjerge National Park and Ebeltoft town.
In Ebeltoft, you’ll find many attractions, including the Jutland Frigate, the Old Town Hall, and the Glass Museum. The town offers many small specialty shops and cozy sidewalk cafés in its cobblestone streets.
It’s about a 30-minute drive to Djurs Sommerland, Northern Europe’s largest amusement park, and the Kattegat Center in Grenaa.
7 nachten
Vanaf
€ 458,-
Incl. verzekering
Prijzen en kalender
Prijs
Periode
- Aankomst
- Vertrek
- Duur
- 1 week
Personen
Tot 6 personen
Let op
Aankomst is niet geselecteerd.
Opmerkingen