Gezellig houten vakantiehuis met zeezicht
Levkavej - 3790 - Hasle
Objectnr: 130-I61328
Modern houten vakantiehuis met zeezicht, vlak bij strand en natuur, ideaal voor gezinnen en rustzoekers.
Beschrijving
Mooi houten huis met prachtig zeezicht op een droomachtige en ongestoorde locatie op een natuurperceel, 200 m van het dichtstbijzijnde strand, 3 km van Hasle en 7 km van Rønne.
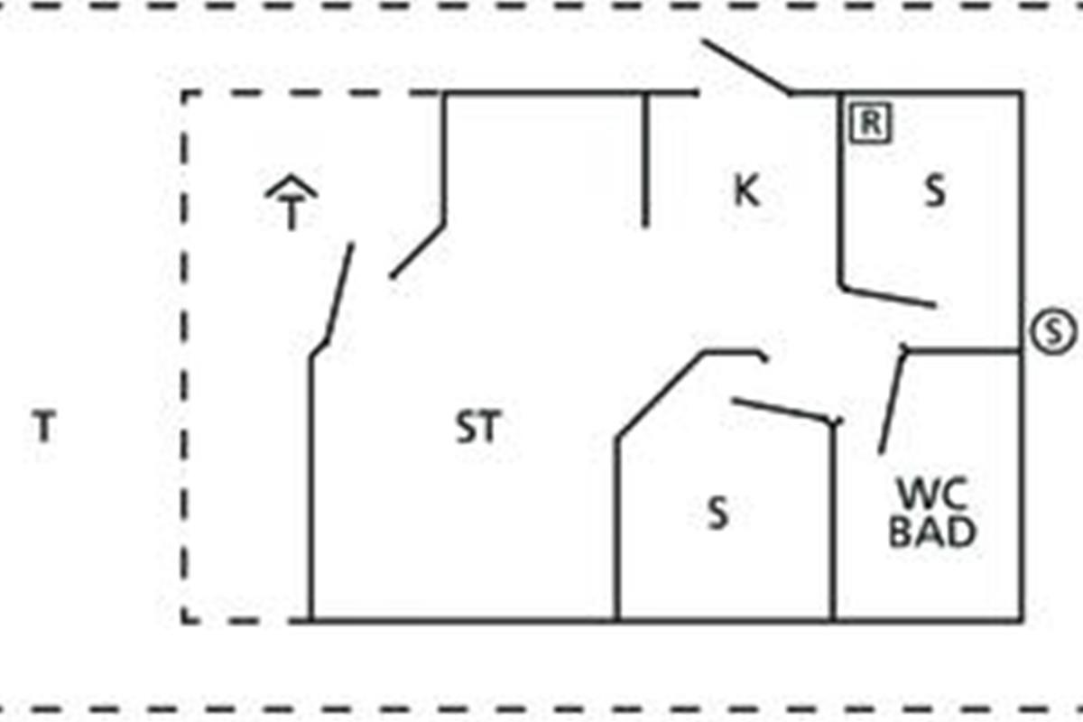
Dit moderne en gezellig ingerichte huisje is geschikt voor maximaal 4 volwassenen en 2 kinderen. Het bestaat uit een mooie woonkamer met houtkachel, tv en eethoek, een open, goed uitgeruste keuken, twee slaapkamers, een vide voor kinderen en een badkamer met vloerverwarming en wasmachine met droger. Daarnaast heeft het vakantiehuis een groot, gedeeltelijk overdekt houten terras met comfortabel lounge meubilair en een grote tuin met een speeltoren met twee schommels en een glijbaan voor de kleintjes. Er is gratis internet in het huis. Maak van hieruit een ontspannen wandeling naar het strand en geniet van heerlijke momenten met veel natuur en onvergetelijke momenten.
Het vakantiehuis ligt dicht bij Hasle en Rønnes goed uitgaan en winkelen, spannend cultureel leven, goede restaurants en meer. Naast bekende bezienswaardigheden zoals Hammershus, Dueodde Strand, de ronde kerk van Østerlars, de Echovallei (Ekkodalen), de kliffen Helligdomsklipperne en meer, heeft Bornholm ongelooflijk veel te bieden. Huur fietsen en verken de prachtige en fascinerende natuur van het eiland. Stop bij een haven of strand en geniet van een Krølle-Bølle-ijsje, genoemd naar de nationale eilandtrol. Bornholm staat ook bekend om zijn unieke keramiek en glaskunst, die u kunt bewonderen en kopen in de vele mooie winkels op het hele eiland.
Vakantiehuis
Slaapkamer (nr. 1) - 2 Slaapplaatsen. (Twijfelaar).
Slaapkamer (nr. 2) - 2 Slaapplaatsen. (Twijfelaar).
Keuken
Vide - 2 Slaapplaatsen. (Matras).
Badkamer (nr. 1) - Toilet: warm en koud water. Douche
Terras of vergelijkbaar - Gedeeltelijk overdekt terras
Dit moderne en gezellig ingerichte huisje is geschikt voor maximaal 4 volwassenen en 2 kinderen. Het bestaat uit een mooie woonkamer met houtkachel, tv en eethoek, een open, goed uitgeruste keuken, twee slaapkamers, een vide voor kinderen en een badkamer met vloerverwarming en wasmachine met droger. Daarnaast heeft het vakantiehuis een groot, gedeeltelijk overdekt houten terras met comfortabel lounge meubilair en een grote tuin met een speeltoren met twee schommels en een glijbaan voor de kleintjes. Er is gratis internet in het huis. Maak van hieruit een ontspannen wandeling naar het strand en geniet van heerlijke momenten met veel natuur en onvergetelijke momenten.
Het vakantiehuis ligt dicht bij Hasle en Rønnes goed uitgaan en winkelen, spannend cultureel leven, goede restaurants en meer. Naast bekende bezienswaardigheden zoals Hammershus, Dueodde Strand, de ronde kerk van Østerlars, de Echovallei (Ekkodalen), de kliffen Helligdomsklipperne en meer, heeft Bornholm ongelooflijk veel te bieden. Huur fietsen en verken de prachtige en fascinerende natuur van het eiland. Stop bij een haven of strand en geniet van een Krølle-Bølle-ijsje, genoemd naar de nationale eilandtrol. Bornholm staat ook bekend om zijn unieke keramiek en glaskunst, die u kunt bewonderen en kopen in de vele mooie winkels op het hele eiland.
Vakantiehuis
Slaapkamer (nr. 1) - 2 Slaapplaatsen. (Twijfelaar).
Slaapkamer (nr. 2) - 2 Slaapplaatsen. (Twijfelaar).
Keuken
Vide - 2 Slaapplaatsen. (Matras).
Badkamer (nr. 1) - Toilet: warm en koud water. Douche
Terras of vergelijkbaar - Gedeeltelijk overdekt terras
7 nachten
Vanaf
€ 1.279,-
Optionele schoonmaak: EUR 104,-
Prijzen en kalender
Prijs
Periode
- Aankomst
- Vertrek
- Duur
- 1 week
Personen
Tot 6 personen
waarvan 2 kinderen (0-11 jaar)
Let op
Aankomst is niet geselecteerd.
Opmerkingen