Ruim vakantiehuis met zeezicht nabij Hasle
Teglkåsvej - 3790 - Hasle
Objectnr: 130-I61352
Ruim vakantiehuis met zeezicht nabij Hasle, dichtbij natuur, strand en voorzieningen, ideaal voor ontspanning.
Beschrijving
Dit mooie, ruime vakantiehuis met zeezicht ligt in een prachtige omgeving 1 km buiten het dorp Hasle.
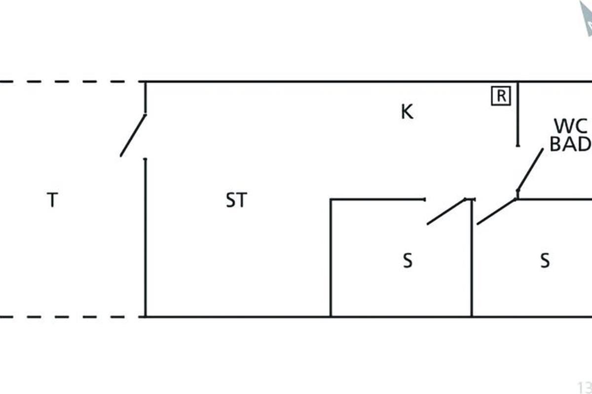
De uitnodigende flat is geschikt voor 4 personen en bestaat uit een woonkamer met tv en radio, een open, goed uitgeruste keuken, twee slaapkamers en een badkamer met wasmachine. Er is gratis wifi met glasvezelnetwerk in de flat. U kunt grondig ontspannen en heerlijke maaltijden bereiden op het mooie terras met buitenmeubilair en barbecue. De flat beschikt ook over een gemeenschappelijke schommel, een grasveld om te zonnebaden en een kampvuurplaats.
U woont slechts 200 m van een fietspad en 250 m van de prachtige rotskust, waar u de mooiste zonsondergangen kunt bewonderen als u geluk heeft. Het kindvriendelijke strand van Hasle ligt op slechts 3 km afstand. Hier kunt u uw vakantietijd midden in de natuur doorbrengen.
Het vakantiehuis ligt dicht bij het goede nachtleven en winkelen van Hasle, het spannende culturele leven, goede restaurants en nog veel meer. Naast bekende bezienswaardigheden zoals Hammershus, Dueodde Strand, de ronde kerk van Østerlars, de Echovallei (Ekkodalen), de kliffen Helligdomsklipperne en meer, heeft Bornholm ongelooflijk veel te bieden. Huur fietsen en verken de prachtige en fascinerende natuur van het eiland. Stop bij een haven of strand en geniet van een Krølle-Bølle-ijsje, genoemd naar de nationale eilandtrol. Bornholm staat ook bekend om zijn unieke keramiek en glaskunst, die u kunt bewonderen en kopen in de vele mooie winkels (zoals die hiernaast) op het hele eiland.
Opmerking: de discrete eigenaar woont ernaast. Ernaast staan de advertenties I61353 en 161354.
Vakantiehuis
Slaapkamer (nr. 1) - 2 Slaapplaatsen. (1-persoonsbed(den)).
Slaapkamer (nr. 2) - 2 Slaapplaatsen. (2-persoonsbed(den)).
Eetkeuken
Badkamer (nr. 1) - Toilet: warm en koud water. Douche
Terras of vergelijkbaar - Open terras
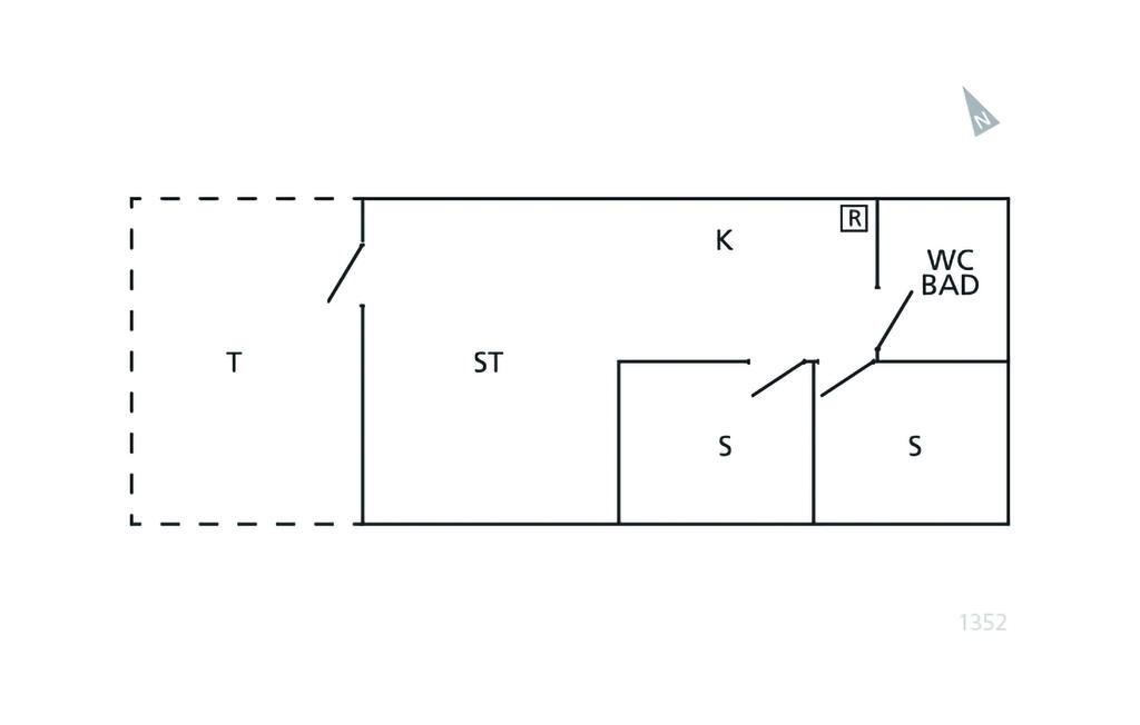
De uitnodigende flat is geschikt voor 4 personen en bestaat uit een woonkamer met tv en radio, een open, goed uitgeruste keuken, twee slaapkamers en een badkamer met wasmachine. Er is gratis wifi met glasvezelnetwerk in de flat. U kunt grondig ontspannen en heerlijke maaltijden bereiden op het mooie terras met buitenmeubilair en barbecue. De flat beschikt ook over een gemeenschappelijke schommel, een grasveld om te zonnebaden en een kampvuurplaats.
U woont slechts 200 m van een fietspad en 250 m van de prachtige rotskust, waar u de mooiste zonsondergangen kunt bewonderen als u geluk heeft. Het kindvriendelijke strand van Hasle ligt op slechts 3 km afstand. Hier kunt u uw vakantietijd midden in de natuur doorbrengen.
Het vakantiehuis ligt dicht bij het goede nachtleven en winkelen van Hasle, het spannende culturele leven, goede restaurants en nog veel meer. Naast bekende bezienswaardigheden zoals Hammershus, Dueodde Strand, de ronde kerk van Østerlars, de Echovallei (Ekkodalen), de kliffen Helligdomsklipperne en meer, heeft Bornholm ongelooflijk veel te bieden. Huur fietsen en verken de prachtige en fascinerende natuur van het eiland. Stop bij een haven of strand en geniet van een Krølle-Bølle-ijsje, genoemd naar de nationale eilandtrol. Bornholm staat ook bekend om zijn unieke keramiek en glaskunst, die u kunt bewonderen en kopen in de vele mooie winkels (zoals die hiernaast) op het hele eiland.
Opmerking: de discrete eigenaar woont ernaast. Ernaast staan de advertenties I61353 en 161354.
Vakantiehuis
Slaapkamer (nr. 1) - 2 Slaapplaatsen. (1-persoonsbed(den)).
Slaapkamer (nr. 2) - 2 Slaapplaatsen. (2-persoonsbed(den)).
Eetkeuken
Badkamer (nr. 1) - Toilet: warm en koud water. Douche
Terras of vergelijkbaar - Open terras
7 nachten
Vanaf
€ 458,-
Optionele schoonmaak: EUR 91,-
Prijzen en kalender
Prijs
Periode
- Aankomst
- Vertrek
- Duur
- 1 week
Personen
Tot 4 personen
Let op
Aankomst is niet geselecteerd.
Opmerkingen