Vestergade 3 Ap. - Havneby - 6792 - Rømø

Objectnr: 037-0281
  • Personen
    4 personen
  • Slaapkamers2 Slaapkamers
  • Badkamers1 Badkamers
  • Woonoppervlakte64 m² Woonoppervlakte
  • Huisdieren1 Huisdieren

Beschrijving

De beschrijving is helaas niet beschikbaar in het Nederlands. Bekijk de tekst hieronder in het Duits of bekijk de automatisch vertaalde tekst in Nederlands.

Es gibt viele gute Gründe, dieses Ferienhaus zu wählen, wenn du das nächste Mal eine Urlaubsreise nach Rømø unternehmen möchtest. Erstens ist das Haus hell und geschmackvoll eingerichtet, und draußen kannst du das sonnige Wetter und den Blick auf das Wattenmeer von der Terrasse aus genießen. Ein weiteres Plus ist die gute zentrale Lage in Havneby, umgeben von zahlreichen Aktivitätsmöglichkeiten.

Willkommen in deinem Ferienhaus
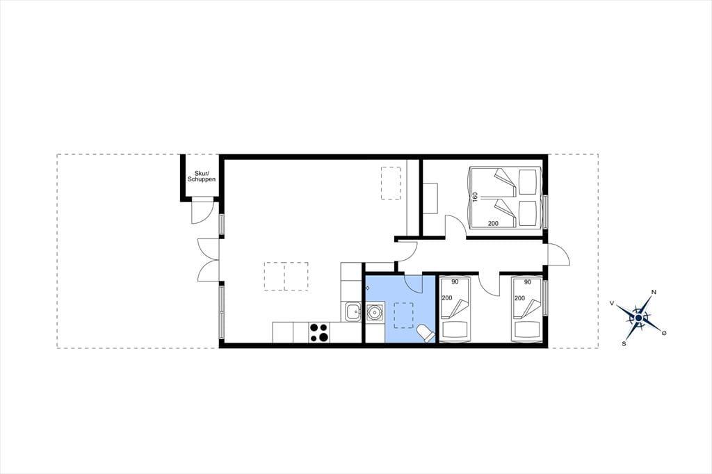
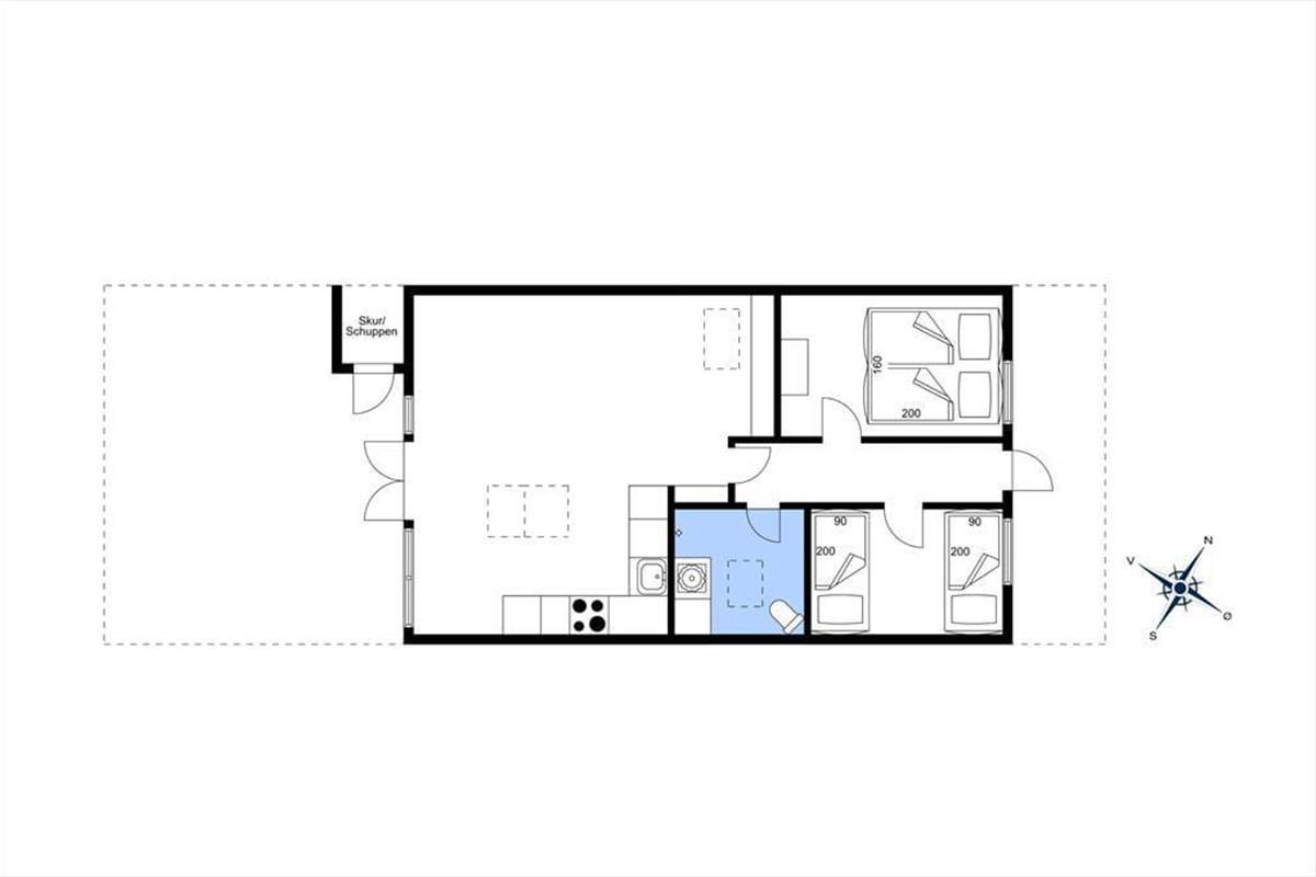
Das Ferienhaus ist genauer gesagt ein Reihenhaus, das 2013 liebevoll renoviert wurde. Dank der erfolgreichen Modernisierung präsentieren sich alle Zimmer auf einladende Weise mit schönen Möbeln und gemütlichen Details. Im Wohnzimmer, dem größten Raum des Hauses, ist das Licht sehr gut, denn hier gibt es ein großes Fenster nach Westen und ein Oberlicht. In den Raum ist eine moderne Küche integriert, die zusätzlich mit einem Esstisch und mehreren bequemen Sitzmöbeln ausgestattet ist. Der Grundriss besteht auch aus zwei Schlafzimmern und einem Badezimmer mit Dusche und Waschmaschine.

Genieße das Leben im Freien
An jedem Ende des Hauses befindet sich eine private Terrasse, sodass du dein Urlaubsleben leicht nach draußen verlegen kannst, sobald die Sonne scheint. Eine Terrasse ist nach Osten ausgerichtet und eignet sich daher gut als Morgenterrasse, während die nach Westen ausgerichtete Terrasse größer ist und daher zu anderen Tageszeiten eine naheliegende Wahl darstellt. Von der Westterrasse aus kannst du auf die flache Küstenlandschaft blicken und beobachten, wie die Fähre langsam auf dem Wattenmeer vorbeifährt. Du hast auch einen guten Überblick auf den Spielplatz, der sich in der Nähe des Hauses befindet – so können die Kinder auf dem Spielplatz spielen, während du in den Gartenmöbeln sitzt.

Entdecke deine Umgebung
Neben dem Spielplatz gehören auch ein Tennisplatz, ein Ballplatz, eine Tischtennisplatte und eine Petanquebahn zu den gemeinsamen Einrichtungen. Hier gibt es also viel zu tun – und es wird natürlich auch empfohlen, das Wattenmeer, das auf der Liste des UNESCO-Weltnaturerbes steht, genauer zu betrachten.


Raumaufteilung

  • Schlafzimmer
    • Doppelbett - 160 x 200
  • Schlafzimmer
    • Einzelbett - 90 x 200
    • Einzelbett - 90 x 200
7 nachten
Vanaf 415,-
Incl. schoonmaak en verzekering
4 personen

Prijzen en kalender

Duur
Personen
Aankomst
Vorige Volgende
  • juli 2026
    madiwodovrzazo
    2712345
    286789101112
    2913141516171819
    3020212223242526
    312728293031
    32
  • augustus 2026
    madiwodovrzazo
    3112
    323456789
    3310111213141516
    3417181920212223
    3524252627282930
    3631
   Kijk of het object beschikbaar is op de geselecteerde datum
Vrij
Bezet
   Aankomst mogelijk

Prijs

Periode
Aankomst
Vertrek
Duur
1 week
Personen
Geen personen geselecteerd

Let op

Aankomst is niet geselecteerd.
Er zijn geen personen geselecteerd.
Contract- en huurvoorwaarden

Indeling & inrichting

Ligging & omgeving

Locatie pin Kaart Denemarken

Onze gastbeoordelingen Externe beoordelingen

4,7 gemiddeld 6 waarderingen
5
(4)
4
(2)
3
(0)
2
(0)
1
(0)

Opmerkingen

Geen beoordelingen hebben commentaar op Nederlands
2 beoordelingen hebben commentaar in andere talen.

Klantenservice

Stel ons een vraag over dit object

Klik hier om ons een vraag over dit object te sturen.