Gulirisvej - Havneby - 6792 - Rømø

Objectnr: 037-1285
  • Personen
    6 personen
  • Slaapkamers2 Slaapkamers
  • Badkamers1 Badkamers
  • Woonoppervlakte112 m² Woonoppervlakte
  • Huisdieren1 Huisdieren

Beschrijving

De beschrijving is helaas niet beschikbaar in het Nederlands. Bekijk de tekst hieronder in het Duits of bekijk de automatisch vertaalde tekst in Nederlands.

Dieses exklusive Ferienhaus ist sehr schön eingerichtet, bietet eine sehr schöne Aussicht und liegt direkt neben dem Links-Golfplatz in Havneby an der Südküste von Rømø.

Willkommen in deinem Ferienhaus
Wenn du das Leben im Wohnzimmer im ersten Stock oder auf dem Balkon genießt, kannst du direkt auf den naturbelassenen Golfplatz blicken und die Fähren beobachten, die das Wattenmeer auf der anderen Seite des Deiches kreuzen. Du kannst die Aussicht auch vom Wohnzimmer des Erdgeschosses aus genießen. Wenn du es dir am eingebauten Kaminofen gemütlich machst, hast du auch eine atemberaubende Aussicht. Wenn du deinen Blick von der herrlichen Aussicht losreißen kannst, ist das Ferienhaus ebenfalls erwähnenswert. Das von einem Architekten entworfene Reihenhaus ist nicht nur ein gut gebautes Qualitätshaus, sondern auch mit wunderbaren Möbeln und komfortablen Wohnlösungen eingerichtet. Als zusätzliches Detail hast du bei diesem Ferienhaus insgesamt 80 Fernsehprogramme zur Auswahl. Außerdem verfügt das Ferienhaus über zwei Schlafzimmer mit neuen Matratzen von 2022, ein Badezimmer und einen großen Wohnbereich mit integrierter Küche im Erdgeschoss. Im Obergeschoss gibt es ein Wohnzimmer mit hervorragender Aussicht, das dank des Schlafsofas auch als Schlafplatz genutzt werden kann.

Genieße das Leben im Freien
Der Balkon im Obergeschoss ist perfekt, wenn du eine sonnige Pause in einer Sonnenliege benötigst. Du kannst dich auch auf der nach Süden ausgerichteten Terrasse treffen. Von hier aus hast du Zugang zur Küche. Daher ist es ein idealer Ort, um die Mahlzeiten während des Sommers im Freien zu genießen. Auf der Nordseite des Hauses gibt es auch eine Terrasse, sodass du mehrere schöne Aufenthaltsplätze zur Auswahl hast.

Entdecke deine Umgebung
Urlauber, die sich für Golf interessieren, werden es natürlich toll finden, in der Nähe des Rømø Golf Club zu wohnen. Dieser verfügt über einen 18-Loch Links-Platz und ein Pay & Play mit neun Löchern. Das Haus befindet sich in der Ferienanlage Enjoy Resorts Rømø. Daher hast du auch einen kleinen Pool, einen Wellnessbereich, eine Bowlinghalle und ein Restaurant in unmittelbarer Nähe. Gleichzeitig sind es nur wenige Gehminuten in die Stadtmitte von Havneby und zum Hafen. Solltest du einkaufen wollen, findest du hier einen Supermarkt und ein Fischgeschäft. Du kannst dich auch in einem der Restaurants der Stadt niederlassen, um etwas zu essen oder einen Tagesausflug mit der Fähre zur Nachbarinsel Sylt machen, wo sich ebenfalls gute Restaurants befinden. In Havneby kannst du Fahrräder mieten, um Rømø zu erkunden. Du kannst zum Sønderstrand fahren, Nordeuropas breitesten Strand. Rømø ist Teil des Nationalparks Wattenmeer, und das wunderbare Gezeitengebiet ist auf der UNESCO-Liste des Weltkulturerbes. Es gibt also viele unvergessliche Naturerlebnisse.

Einige Aktivitäten für die Kinder sind kostenlos. Im Centergebäude können Sie gegen Bezahlung die Schwimmhalle benutzen, Wellness genießen, Golf spielen, bowlen und im Restaurant essen gehen. Darüber hinaus gibt es verschiedene Aktivitäten für Kinder.


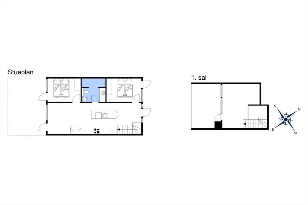
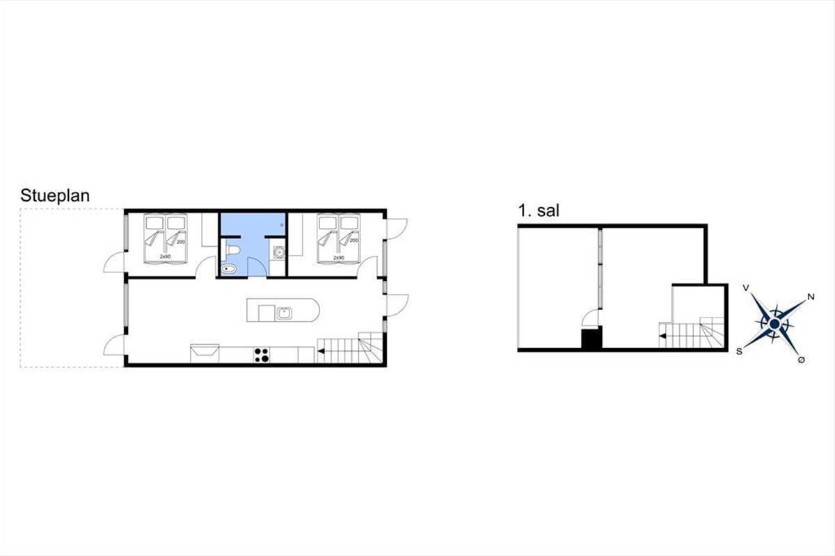
Raumaufteilung

  • Schlafzimmer
    • Doppelbett - 160 x 200
  • Schlafzimmer
    • Doppelbett - 160 x 200
7 nachten
Vanaf 660,-
Incl. schoonmaak, verzekering en consumptie
6 personen

Prijzen en kalender

Duur
Personen
Aankomst
Vorige Volgende
  • april 2026
    madiwodovrzazo
    1412345
    156789101112
    1613141516171819
    1720212223242526
    1827282930
    19
  • mei 2026
    madiwodovrzazo
    18123
    1945678910
    2011121314151617
    2118192021222324
    2225262728293031
    23
   Kijk of het object beschikbaar is op de geselecteerde datum
Vrij
Bezet
   Aankomst mogelijk

Prijs

Periode
Aankomst
Vertrek
Duur
1 week
Personen
Geen personen geselecteerd

Let op

Aankomst is niet geselecteerd.
Er zijn geen personen geselecteerd.
Contract- en huurvoorwaarden

Indeling & inrichting

Ligging & omgeving

Locatie pin Kaart Denemarken

Klantenservice

Stel ons een vraag over dit object

Klik hier om ons een vraag over dit object te sturen.