Groot voormalig boerderijhuis met bubbelbaden
Oddesundvej - Helligsø - 7760 - Hurup
Objectnr: 121-31-0022
Ruim voormalig boerderijhuis in Hurup Thy met bubbelbaden en activiteitenruimte, ideaal voor grote groepen in een natuurlijke omgeving.
Beschrijving
Inrichting
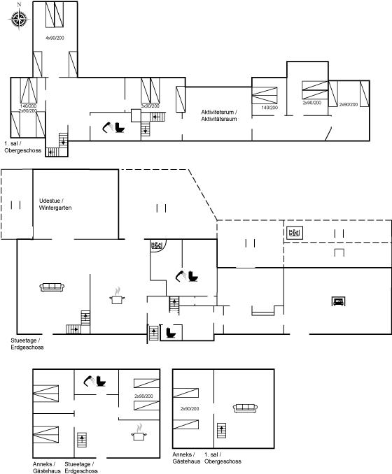
Voormalige boerderij. is geschikt voor 25 personen en 2 kinderen tot 3 jaar. De vakantiewoning heeft een oppervlakte van 645 m2, bestaat uit 2 verdiepingen, en is gebouwd in 1967. In 2014 is de vakantiewoning volledig renoveerd. Het is toegestaan om 2 huisdieren mee te nemen. De vakantiewoning heft Wasmachine. Wasdroge.Vloerverwarming op de begane grond. Vriezer capaciteit van 300 liter. Voor de kleintjes 2 stukken Kinderstoel. Verschoningstafel.
Buiten
De vakantiewoning is gelegen op een 10000 m² groot natuural grond. Afstand tot de fjord 300 m. Dichtstbijzijnde winkel 5000 m. Er is een golfbaan op een afstand van 20000 m. Bij de vakantiewoning hoort 70 m² terras. Daarnaast is er een 30 m² groot overdekt terras. Schommel. Trampoline. Voetbaldoel.Vuurplaats. Barbecue. Parkeerplaats bij het huis.
Activiteitenruimte
Activiteitenruimte. Pooltafe. Tafeltennis. Airhockey.
Slaapomstandigheden
Er zijn in totaal 10 slaapkamers. De slaapplaatsen zijn als volgt verdeeld: 8 slaapplaatsen in tweepersoonsbedden. 17 slaapplaatsen in eenpersoonsbedden. Verder sijn ook 2 stukken kinderbed ter beschikking.
Keuken
De keuken is uitgerust met koelkast Er is 4 inductiekookplaten, heteluchtoven, magnetron en vaatwasser.
Douche en toilet
Er is 3 badkamers met douchehok en 4 toiletten, waarvan 1 gastentoilet. Er is vloerverwarming in 1 badkamer. Er is vloerverwarming in het gastentoilet.
Bubbelbad
Het binnenbubbelbad (vulwater) biedt ontspanning aan 2 personen.Het buitenbubbelbad (standwater) biedt ontspanning aan 6 personen.
Multimedia
In de vakantiewoning is aanwezig 2 televisies. Radio. Stereo-installatie. CD-speler.Nintendo Wii. Tenminste 4 deense zenders. 1-3 sweedse zenders. 1-3 noorse zenders. Tenminste 4 duitse zenders. Draadloos internet.
Goed om te weten
Smoking is prohibited. By violation of this prohibition a fee of min. EUR 420 will be charged.
Voormalige boerderij. is geschikt voor 25 personen en 2 kinderen tot 3 jaar. De vakantiewoning heeft een oppervlakte van 645 m2, bestaat uit 2 verdiepingen, en is gebouwd in 1967. In 2014 is de vakantiewoning volledig renoveerd. Het is toegestaan om 2 huisdieren mee te nemen. De vakantiewoning heft Wasmachine. Wasdroge.Vloerverwarming op de begane grond. Vriezer capaciteit van 300 liter. Voor de kleintjes 2 stukken Kinderstoel. Verschoningstafel.
Buiten
De vakantiewoning is gelegen op een 10000 m² groot natuural grond. Afstand tot de fjord 300 m. Dichtstbijzijnde winkel 5000 m. Er is een golfbaan op een afstand van 20000 m. Bij de vakantiewoning hoort 70 m² terras. Daarnaast is er een 30 m² groot overdekt terras. Schommel. Trampoline. Voetbaldoel.Vuurplaats. Barbecue. Parkeerplaats bij het huis.
Activiteitenruimte
Activiteitenruimte. Pooltafe. Tafeltennis. Airhockey.
Slaapomstandigheden
Er zijn in totaal 10 slaapkamers. De slaapplaatsen zijn als volgt verdeeld: 8 slaapplaatsen in tweepersoonsbedden. 17 slaapplaatsen in eenpersoonsbedden. Verder sijn ook 2 stukken kinderbed ter beschikking.
Keuken
De keuken is uitgerust met koelkast Er is 4 inductiekookplaten, heteluchtoven, magnetron en vaatwasser.
Douche en toilet
Er is 3 badkamers met douchehok en 4 toiletten, waarvan 1 gastentoilet. Er is vloerverwarming in 1 badkamer. Er is vloerverwarming in het gastentoilet.
Bubbelbad
Het binnenbubbelbad (vulwater) biedt ontspanning aan 2 personen.Het buitenbubbelbad (standwater) biedt ontspanning aan 6 personen.
Multimedia
In de vakantiewoning is aanwezig 2 televisies. Radio. Stereo-installatie. CD-speler.Nintendo Wii. Tenminste 4 deense zenders. 1-3 sweedse zenders. 1-3 noorse zenders. Tenminste 4 duitse zenders. Draadloos internet.
Goed om te weten
Smoking is prohibited. By violation of this prohibition a fee of min. EUR 420 will be charged.
7 nachten
Vanaf
€ 893,-
Optionele schoonmaak: EUR 567,-
Prijzen en kalender
Prijs
Periode
- Aankomst
- Vertrek
- Duur
- 1 week
Personen
Tot 25 personen
Let op
Aankomst is niet geselecteerd.
Opmerkingen