Gezellig vakantiehuis nabij strand in Hals

Plantagevej - Hou - 9370 - Hals

Objectnr: 053-HA400
Gezellig vakantiehuis in Hals, nabij het strand, met houtkachel, trampoline en moderne voorzieningen.
  • Personen
    6 personen
    waarvan 2 kinderen (0-11 jaar)
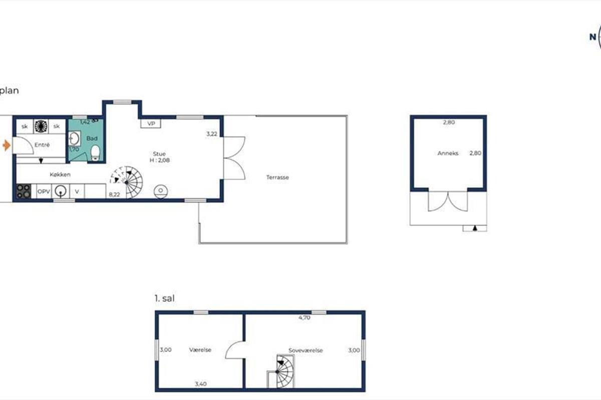
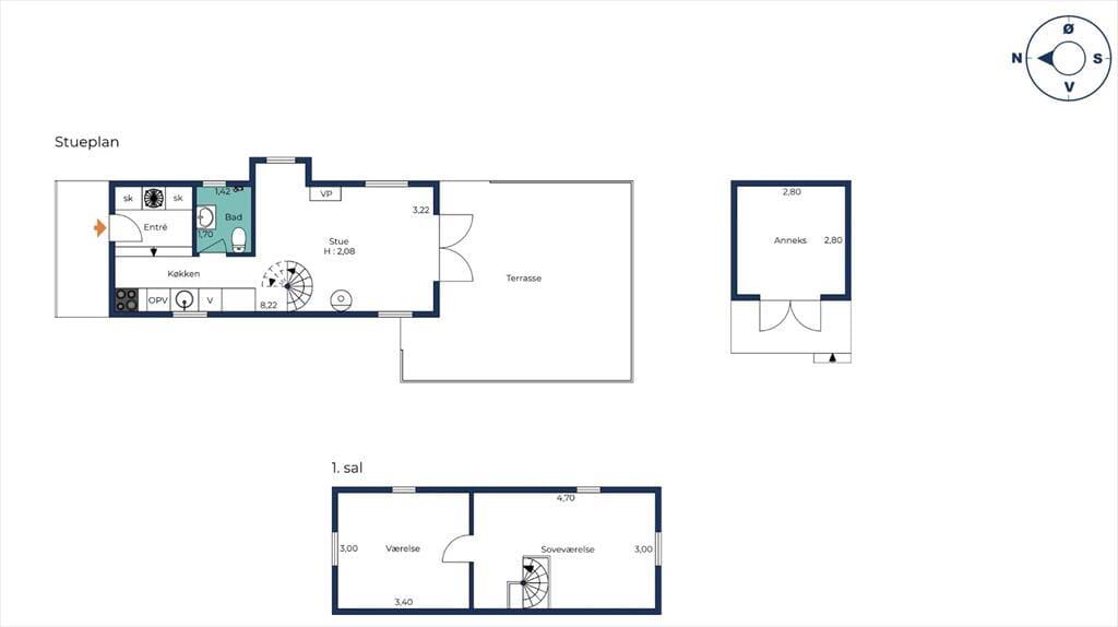
  • Slaapkamers2 Slaapkamers
  • Badkamers1 Badkamers
  • Woonoppervlakte67 m² Woonoppervlakte
  • Huisdieren1 Huisdieren

Beschrijving

Vakantiehuis in Hals, Noord-Jutland, met plaats voor 4 volwassenen, 2 kinderen en 1 huisdieren. De woning heeft een gezellig interieur met o.a. een houtkachel, en beschikt daarnaast over een wasmachine en een vaatwasser.
Als u deze vakantiewoning huurt, heeft u toegang tot internet. Het is 200 meter naar het dichtstbijzijnde strand en 3.500 meter naar de dichtstbijzijnde supermarkt.
De woning heeft een oppervlakte van 67 m² en ligt op een 448 m² groot perceel, met o.a. een trampoline.

Kamerindeling

  • Slaapkamer
    • Tweepersoonsbed
  • Slaapkamer
    • Tweepersoonsbed
7 nachten
Vanaf 428,-
Incl. schoonmaak en verzekering
4 volwassenen 2 kinderen

Prijzen en kalender

Duur
Personen
Aankomst
Volgende
   Kijk of het object beschikbaar is op de geselecteerde datum
Vrij
Bezet
   Aankomst mogelijk

Prijs

Periode
Aankomst
Vertrek
Duur
1 week
Personen
Geen personen geselecteerd

Let op

Aankomst is niet geselecteerd.
Er zijn geen personen geselecteerd.
Contract- en huurvoorwaarden

Indeling & inrichting

Ligging & omgeving

Locatie pin Kaart Denemarken

Klantenservice

Stel ons een vraag over dit object

Klik hier om ons een vraag over dit object te sturen.