Ndr. Skovvej - Houstrup - 6830 - Nr. Nebel

Objectnr: 328-189954
  • Personen
    6 personen
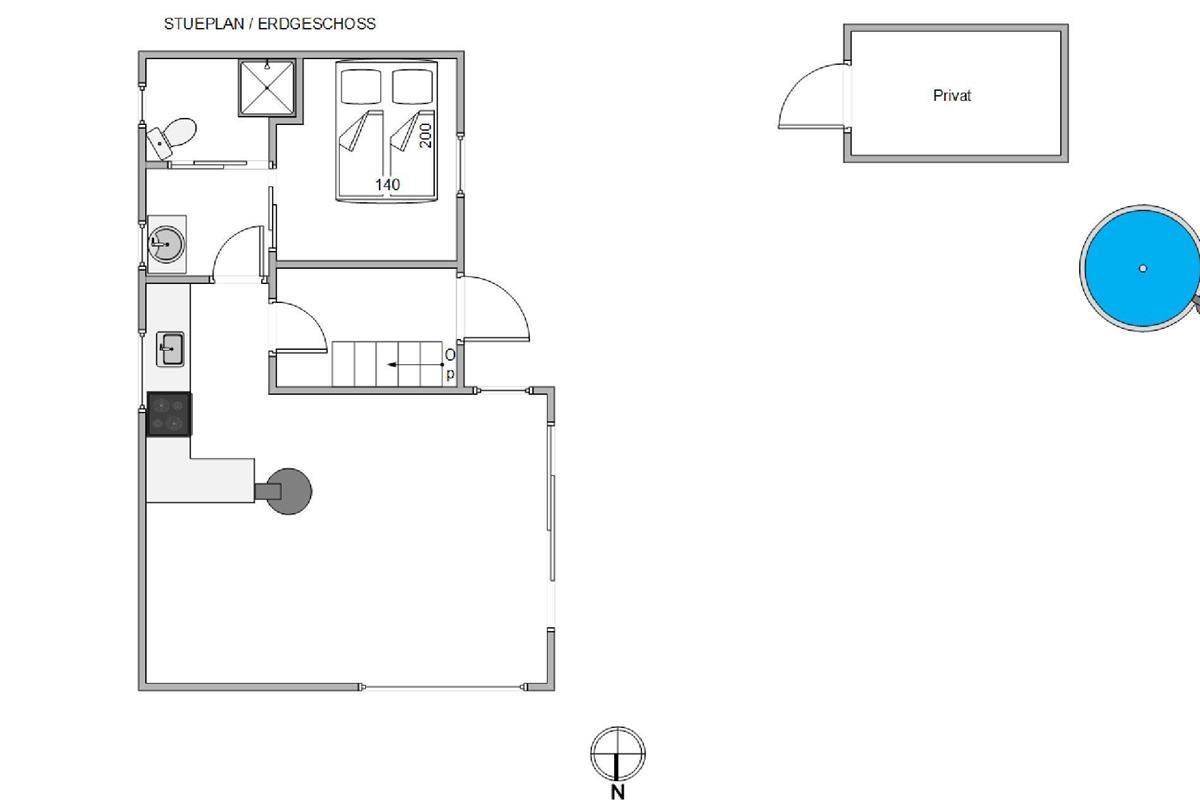
  • Slaapkamers3 Slaapkamers
  • Badkamers1 Badkamers
  • Woonoppervlakte85 m² Woonoppervlakte
  • Huisdieren1 Huisdieren

Beschrijving

De beschrijving is helaas niet beschikbaar in het Nederlands. Bekijk de tekst hieronder in het Engels of bekijk de automatisch vertaalde tekst in Nederlands.

A cosy thatched holiday home with authentic summer house charm that creates an instant holiday atmosphere from the moment you step inside.

A truly comfortable holiday retreat

Located at Ndr. Skovvej 26, this holiday home sits on a partially fenced plot of 3,286 square metres, perfect for a memorable holiday. Built in 1976 and partially renovated in 2021, the holiday home exudes the typical charm of a traditional summer house from the outside.

Comfortable furniture, internet and television are cleverly combined with original features, creating a pleasant atmosphere perfect for cosy family gatherings.

Large idyllic garden grounds at Ndr. Skovvej 26

The magnificent grounds invite you to relax and dream. Cosy seating areas and tree-lined meadows create the feeling of stepping into a fairy tale from times gone by. Enjoy birdsong and the fragrance of surrounding plants while sunbathing on the terrace and watching children at play. You'll also find a partially covered terrace providing welcome shade on hot summer days.

Outside, you'll discover a Nordic hot tub, outdoor sauna and outdoor shower for open-air wellness experiences. Please note that the outdoor shower is available from April to November.

After a day outdoors, it's a pleasure to end the evening in front of the crackling wood-burning stove as dusk slowly settles over the beautiful landscape. Once the fire has died down, climb the narrow stairs to the comfortable bedrooms on the first floor, where peaceful nights await.

Beautiful surroundings perfect for exploration

The vast sandy beach of the North Sea is just a short distance from the house, offering a memorable experience in every season. Why not take a bicycle ride through forests and meadows to the dunes? There's hardly anything more beautiful than the view from behind the last row of dunes, where the vast blue sea opens up before you. The holiday home provides the perfect base for an unforgettable holiday.

De prijs kan niet worden berekend met de geselecteerde periode.

Prijzen en kalender

Duur
Aankomst
Volgende
  • maart 2026
    madiwodovrzazo
    91
    102345678
    119101112131415
    1216171819202122
    1323242526272829
    143031
  • april 2026
    madiwodovrzazo
    1412345
    156789101112
    1613141516171819
    1720212223242526
    1827282930
    19
   Kijk of het object beschikbaar is op de geselecteerde datum
Vrij
Bezet
   Aankomst mogelijk

Prijs

Periode
Aankomst
Vertrek
Duur
Personen
Tot 6 personen

Let op

Aankomst is niet geselecteerd.
Duur is niet geselecteerd.
Contract- en huurvoorwaarden

Indeling & inrichting

Ligging & omgeving

Locatie pin Kaart Denemarken

Klantenservice

Stel ons een vraag over dit object

Klik hier om ons een vraag over dit object te sturen.