Skovvang - Houstrup - 6830 - Nr. Nebel

Objectnr: 328-249778
  • Personen
    5 personen
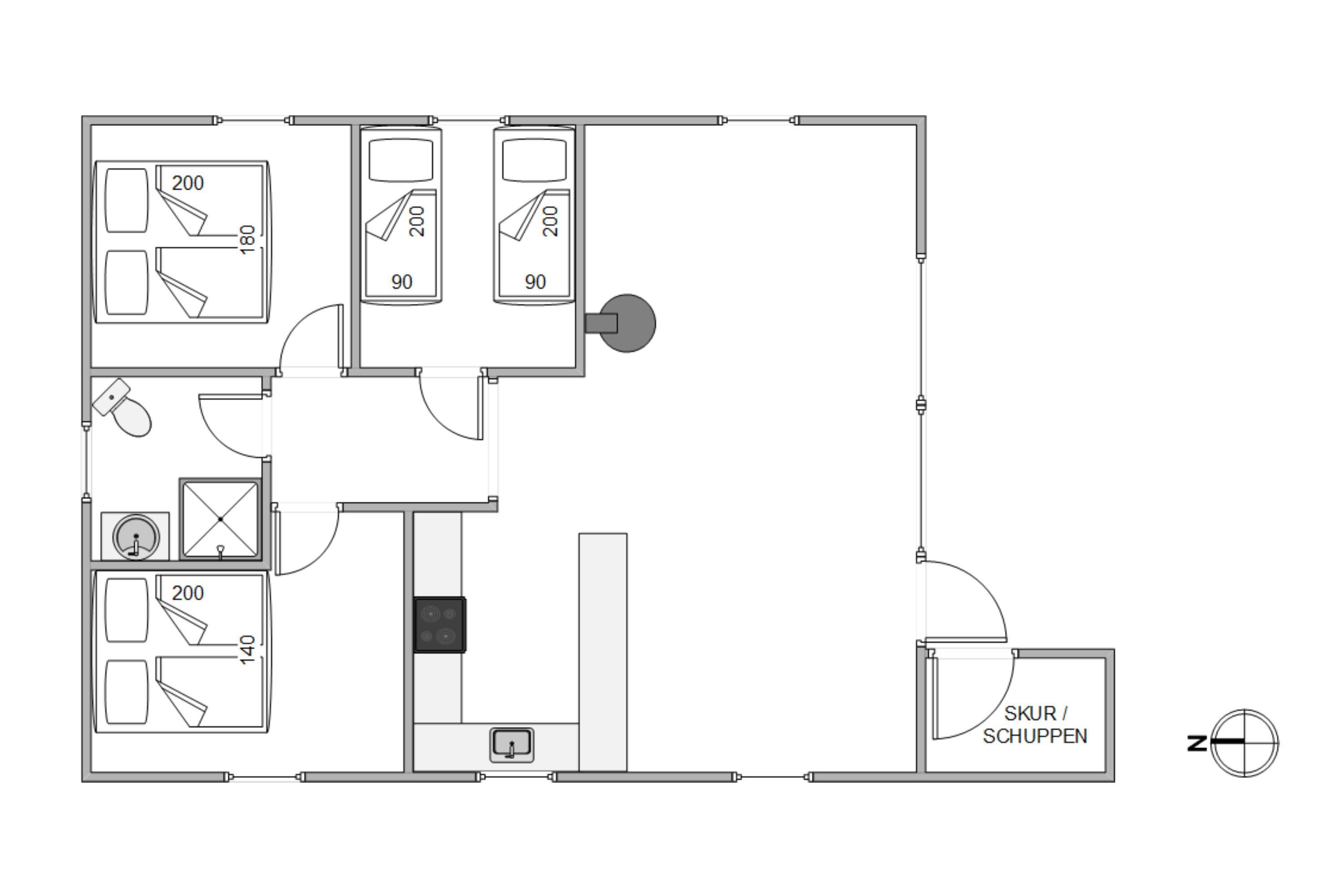
  • Slaapkamers3 Slaapkamers
  • Badkamers1 Badkamers
  • Woonoppervlakte64 m² Woonoppervlakte
  • Huisdieren1 Huisdieren

Beschrijving

De beschrijving is helaas niet beschikbaar in het Nederlands. Bekijk de tekst hieronder in het Engels of bekijk de automatisch vertaalde tekst in Nederlands.

Welcome to this holiday home in Houstrup, located at Skovvang 84. With 64 square metres of living space, this comfortable home accommodates 5 people + 1 dog and is perfectly nestled in the picturesque Danish countryside.

Leave everyday life behind, unwind and enjoy carefree days.

Your retreat at Skovvang 84

Inside the holiday home, which was renovated in 2021, a cosy and modern atmosphere awaits you.

The central living area is the perfect gathering spot for all guests. Here you can relax in front of the wood-burning stove and enjoy the crackling fire on cooler days. The open-plan design makes it easy to spend time together - whether playing games, reading, or simply lounging on the sofa. And don't worry, the modern heat pump keeps the holiday home at a pleasant temperature regardless of the weather outside.

The kitchen is equipped with modern appliances and invites you to create delicious meals. The 64 square metres include 3 bedrooms. 2 of the bedrooms have double beds, perfect for restful nights, while the third room has 2 single beds, ideal for friends or children. And the bathroom? It features underfloor heating - perfect for comfortably warm feet on fresh mornings.

Outdoor living: The perfect spot for sunny hours and adventures

On the spacious natural grounds at Skovvang 84, you can enjoy the fresh air and soak up the sunshine. The open terrace is perfect for relaxing outdoor hours - whether enjoying a leisurely breakfast, a cup of coffee, or a delicious dinner under the open sky. And the barbecue? It ensures you can create a real culinary highlight while winding down the day properly with family or friends.

For young explorers, there's a swing in the grounds providing plenty of fun and adventure. And if you fancy some exercise, a walk leads directly to the forests and beautiful coastline - perfect for exploration.

If you're bringing your dog - no worries. Your four-legged friend is also welcome. The whole family - with or without paws - can enjoy relaxing days in Denmark.

Walks, beaches and nature: The holiday home surroundings

The holiday home in Houstrup couldn't be better situated - nature and adventure await right on your doorstep.

The nearest beach is just 3.1 miles (5 km) away, where you can fully enjoy the Danish North Sea coast. Take long walks on the sand, listen to the soothing sound of the waves, or simply relax in the sunshine. The beach has something for everyone.

And if you suddenly fancy an extensive breakfast on the terrace or a fantastic family barbecue, the nearest supermarket is only 1.5 miles (2.5 km) away. Get fresh food and everything you need for daily essentials - or a small souvenir.

If you want a break from beach life, the surrounding area has plenty to offer: hiking and cycling trails lead you through dense forests, across picturesque dunes and past peaceful lakes. In Houstrup, you can simply relax or embark on your next adventure - the choice is yours.

7 nachten
Vanaf 324,-

Prijzen en kalender

Duur
Aankomst
Vorige Volgende
  • april 2026
    madiwodovrzazo
    1412345
    156789101112
    1613141516171819
    1720212223242526
    1827282930
    19
  • mei 2026
    madiwodovrzazo
    18123
    1945678910
    2011121314151617
    2118192021222324
    2225262728293031
    23
   Kijk of het object beschikbaar is op de geselecteerde datum
Vrij
Bezet
   Aankomst mogelijk

Prijs

Periode
Aankomst
Vertrek
Duur
1 week
Personen
Tot 5 personen

Let op

Aankomst is niet geselecteerd.
Contract- en huurvoorwaarden

Indeling & inrichting

Ligging & omgeving

Locatie pin Kaart Denemarken

Klantenservice

Stel ons een vraag over dit object

Klik hier om ons een vraag over dit object te sturen.