Sortebærdalen 37, Houvig - Houvig - 6950 - Ringkøbing
Objectnr: 549-919051
Beschrijving
De beschrijving is helaas niet beschikbaar in het Nederlands. Bekijk de tekst hieronder in het Engels of bekijk de automatisch vertaalde tekst in Nederlands.
In this lovely and perfectly located holiday home, you'll find everything you need for the ultimate holiday experience. The House is surrounded by terraces on different levels, each offering breathtaking views of the countryside, dunes, holiday home area, and glimpses of the North Sea.
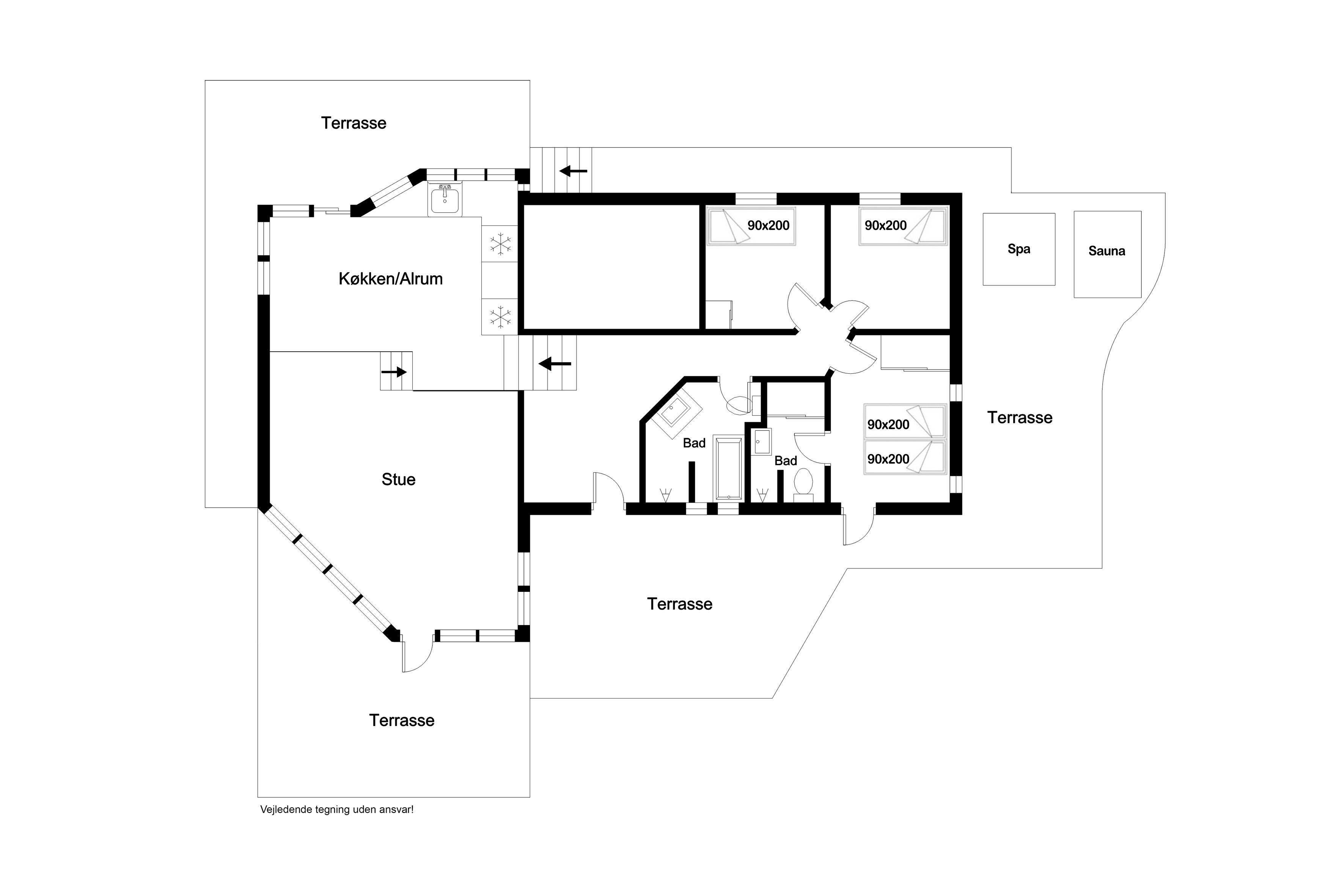
On one of the terraces, you can enjoy a standing water spa and an outdoor sauna, both with fantastic views that invite hours of outdoor relaxation after a long walk along the roaring North Sea.
As you step into the house, you're greeted by an inviting gas fireplace, easily controlled with a remote. The bedrooms are located at one end of the house, one of which is a master bedroom with its own bathroom, and an additional bathroom with both a shower and a luxurious bathtub.
At the opposite end of the house, on a staggered level, you'll find the large, beautifully designed kitchen with many fine details, including built-in lights above the hidden handles in the kitchen cabinets. Doing the dishes no longer feels like a chore when you can simultaneously enjoy the fantastic view of the beautiful landscape.
The living room is just a few steps higher than the kitchen and dining area, also offering spectacular views of the dunes and the sea. Every detail has been considered here with designer furniture, a large TV, and a sound system. The holiday home is only a few kilometers from the seaside resort of Søndervig.
On one of the terraces, you can enjoy a standing water spa and an outdoor sauna, both with fantastic views that invite hours of outdoor relaxation after a long walk along the roaring North Sea.
As you step into the house, you're greeted by an inviting gas fireplace, easily controlled with a remote. The bedrooms are located at one end of the house, one of which is a master bedroom with its own bathroom, and an additional bathroom with both a shower and a luxurious bathtub.
At the opposite end of the house, on a staggered level, you'll find the large, beautifully designed kitchen with many fine details, including built-in lights above the hidden handles in the kitchen cabinets. Doing the dishes no longer feels like a chore when you can simultaneously enjoy the fantastic view of the beautiful landscape.
The living room is just a few steps higher than the kitchen and dining area, also offering spectacular views of the dunes and the sea. Every detail has been considered here with designer furniture, a large TV, and a sound system. The holiday home is only a few kilometers from the seaside resort of Søndervig.
De prijs kan niet worden berekend met de geselecteerde periode.
Prijzen en kalender
Duur
Aankomst
-
maart 2026
ma di wo do vr za zo 9 1 10 2 3 4 5 6 7 8 11 9 10 11 12 13 14 15 12 16 17 18 19 20 21 22 13 23 24 25 26 27 28 29 14 30 31 -
april 2026
ma di wo do vr za zo 14 1 2 3 4 5 15 6 7 8 9 10 11 12 16 13 14 15 16 17 18 19 17 20 21 22 23 24 25 26 18 27 28 29 30 19
Kijk of het object beschikbaar is op de geselecteerde datum
Vrij
Bezet
Aankomst mogelijk
Prijs
Periode
- Aankomst
- Vertrek
- Duur
Personen
Tot 5 personen
Let op
Aankomst is niet geselecteerd.
Duur is niet geselecteerd.