Gerenoveerd vakantiehuis met tuin en activiteiten
Østkystvejen - Lyngså - 9300 - Sæby
Objectnr: 121-42-0283
Ruim en volledig gerenoveerd vakantiehuis in Sæby met grote tuin en activiteitenruimte, dicht bij zee en winkels.
Beschrijving
Inrichting
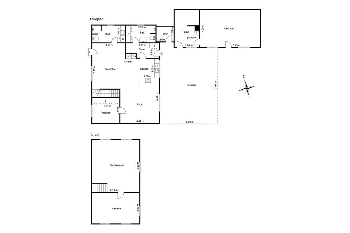
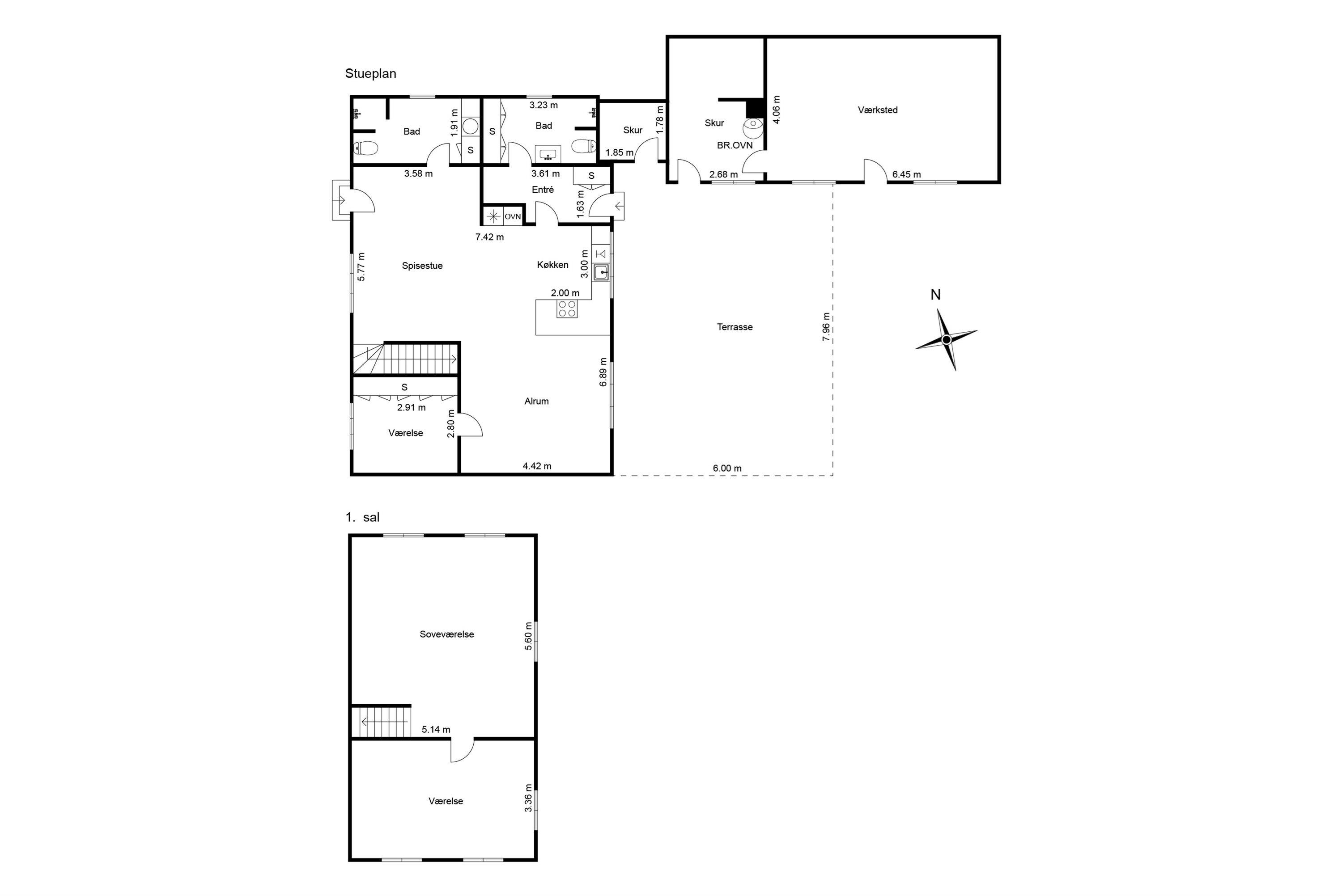
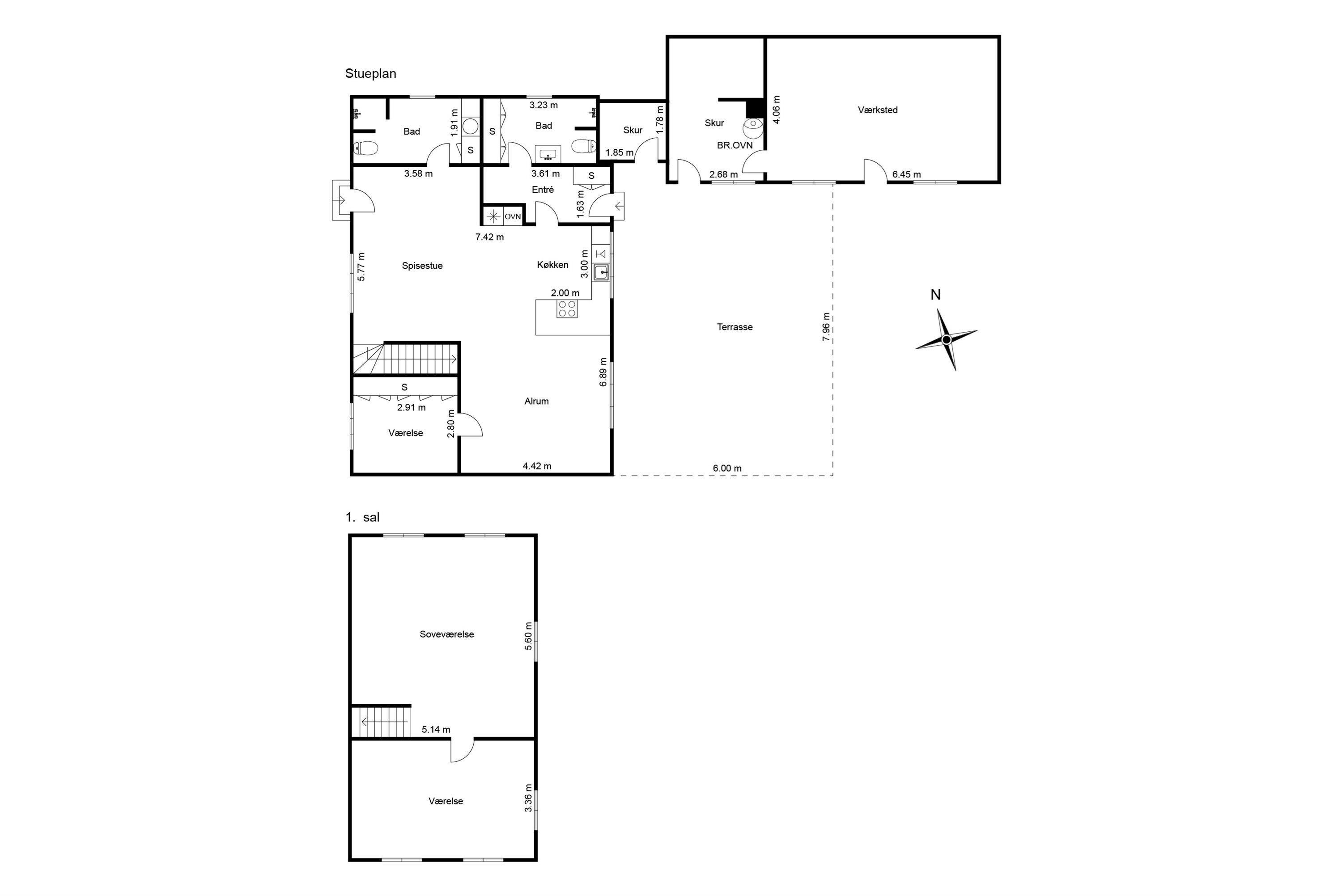
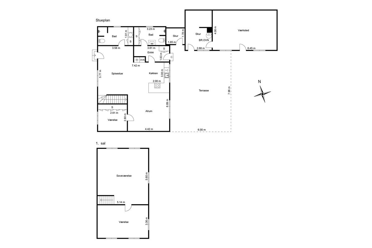
Vakantiehuis is geschikt voor 8 personen en 1 kinderen tot 3 jaar. De vakantiewoning heeft een oppervlakte van 157 m2, bestaat uit 2 verdiepingen, en is gebouwd in 1922. In 2024 is de vakantiewoning volledig renoveerd. Het is toegestaan om 2 huisdieren mee te nemen. De vakantiewoning heft Wasmachine. Wasdroge. Vriezer capaciteit van 30 liter. Verschoningstafel.
Buiten
De vakantiewoning is gelegen op een 1315 m² groot aangelegde tuin. Afstand tot de zee 700 m. Dichtstbijzijnde winkel 100 m. Bij de vakantiewoning hoort terras.Vuurplaats. Barbecue. Parkeerplaats bij het huis.
Activiteitenruimte
Activiteitenruimte. Tafeltennis. Dart. Tafelvoetbal.
Slaapomstandigheden
Er zijn in totaal 2 slaapkamers. De slaapplaatsen zijn als volgt verdeeld: 4 slaapplaatsen in tweepersoonsbedden. 4 slaapplaatsen in slaapbanken (tweepersoons). 2 van deze slaapplaatsen bevinden zich in de huiskamer. Verder is kinderbed ter beschikking.
Keuken
De keuken is uitgerust met koelkast Er is 4 inductiekookplaten, heteluchtoven, magnetron en vaatwasser.
Douche en toilet
Er is 2 badkamers met douchehok en 2 toiletten. Er is vloerverwarming in 2 van de badkamers.
Multimedia
In de vakantiewoning is aanwezig 1 smart-tv. Geen tv-kanalen - alleen streaming. Draadloos internet.
Goed om te weten
Geen verhuur aan jeugdgroepen waar iedereen tussen de 15 en 25 jaar oud is. Roken niet toegestaan. Bij overtreding van het verbod wordt een boete van minimaal EUR 420,- in rekening gebracht.
Vakantiehuis is geschikt voor 8 personen en 1 kinderen tot 3 jaar. De vakantiewoning heeft een oppervlakte van 157 m2, bestaat uit 2 verdiepingen, en is gebouwd in 1922. In 2024 is de vakantiewoning volledig renoveerd. Het is toegestaan om 2 huisdieren mee te nemen. De vakantiewoning heft Wasmachine. Wasdroge. Vriezer capaciteit van 30 liter. Verschoningstafel.
Buiten
De vakantiewoning is gelegen op een 1315 m² groot aangelegde tuin. Afstand tot de zee 700 m. Dichtstbijzijnde winkel 100 m. Bij de vakantiewoning hoort terras.Vuurplaats. Barbecue. Parkeerplaats bij het huis.
Activiteitenruimte
Activiteitenruimte. Tafeltennis. Dart. Tafelvoetbal.
Slaapomstandigheden
Er zijn in totaal 2 slaapkamers. De slaapplaatsen zijn als volgt verdeeld: 4 slaapplaatsen in tweepersoonsbedden. 4 slaapplaatsen in slaapbanken (tweepersoons). 2 van deze slaapplaatsen bevinden zich in de huiskamer. Verder is kinderbed ter beschikking.
Keuken
De keuken is uitgerust met koelkast Er is 4 inductiekookplaten, heteluchtoven, magnetron en vaatwasser.
Douche en toilet
Er is 2 badkamers met douchehok en 2 toiletten. Er is vloerverwarming in 2 van de badkamers.
Multimedia
In de vakantiewoning is aanwezig 1 smart-tv. Geen tv-kanalen - alleen streaming. Draadloos internet.
Goed om te weten
Geen verhuur aan jeugdgroepen waar iedereen tussen de 15 en 25 jaar oud is. Roken niet toegestaan. Bij overtreding van het verbod wordt een boete van minimaal EUR 420,- in rekening gebracht.
7 nachten
Vanaf
€ 550,-
Optionele schoonmaak: EUR 190,-
Prijzen en kalender
Prijs
Periode
- Aankomst
- Vertrek
- Duur
- 1 week
Personen
Tot 8 personen
Let op
Aankomst is niet geselecteerd.