Modern appartement met zeezicht nabij strand
Mullerup Strandvej 107, - Mullerup - 4200 - Slagelse
Objectnr: 130-E22054
Ontdek dit modern ingericht vakantieappartement met panoramisch zeezicht, vlak bij het kindvriendelijke zandstrand.
Beschrijving
Geniet van een prachtig uitzicht op zee in dit uitnodigende vakantiehuis.
Welkom in het comfortabele appartement dat op zijn gasten wacht op een fantastische locatie dicht bij het strand. Combineer heerlijke dagen hier met uitbundig zwemplezier en spannende excursies in de omgeving, die veel te bieden heeft. Lichte, smaakvol ingerichte kamers bieden de perfecte omgeving voor een time-out van het dagelijks leven. Panoramische ramen van vloer tot plafond zorgen ervoor dat je je heel dicht bij de natuur en de zee voelt. Breng hier gezellige avonden door als je terugkomt van een van je excursies, samen eten met uitzicht op de buitenlucht of op de bank met je favoriete tv-serie.
Op het terras kun je je ogen helemaal laten dwalen naar de Grote Belt; het is de ideale plek om te genieten van het fantastische uitzicht tijdens het ontbijt of de koffie in de namiddag.
Het kindvriendelijke, lange zandstrand ligt op slechts een steenworp afstand van het vakantiehuis. Jong en oud genieten hier van puur zwem- en strandplezier. Maak een uitstapje naar het schiereiland Reersø met zijn unieke natuur, mooie stranden, historische boerderijen en natuur die uitnodigt tot wandelen en fietsen.
Geniet van uw vakantie in het vakantiehuis bij het strand!
Vakantiehuis
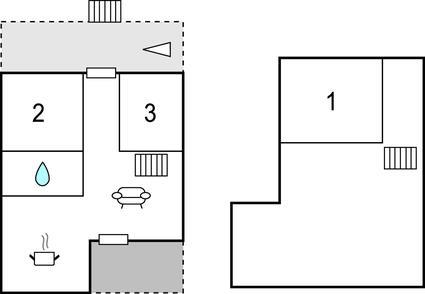
Slaapkamer (nr. 1) - 2 Slaapplaatsen. (2-persoonsbed(den)).
Slaapkamer (nr. 2) - 2 Slaapplaatsen. (2-persoonsbed(den)).
Slaapkamer (nr. 3) - 2 Slaapplaatsen. (1-persoonsbed(den)).
Woonkamer
Keuken
Badkamer (nr. 1) - Toilet: warm en koud water. Douche
Terras of vergelijkbaar - Open en overdekt terras
Welkom in het comfortabele appartement dat op zijn gasten wacht op een fantastische locatie dicht bij het strand. Combineer heerlijke dagen hier met uitbundig zwemplezier en spannende excursies in de omgeving, die veel te bieden heeft. Lichte, smaakvol ingerichte kamers bieden de perfecte omgeving voor een time-out van het dagelijks leven. Panoramische ramen van vloer tot plafond zorgen ervoor dat je je heel dicht bij de natuur en de zee voelt. Breng hier gezellige avonden door als je terugkomt van een van je excursies, samen eten met uitzicht op de buitenlucht of op de bank met je favoriete tv-serie.
Op het terras kun je je ogen helemaal laten dwalen naar de Grote Belt; het is de ideale plek om te genieten van het fantastische uitzicht tijdens het ontbijt of de koffie in de namiddag.
Het kindvriendelijke, lange zandstrand ligt op slechts een steenworp afstand van het vakantiehuis. Jong en oud genieten hier van puur zwem- en strandplezier. Maak een uitstapje naar het schiereiland Reersø met zijn unieke natuur, mooie stranden, historische boerderijen en natuur die uitnodigt tot wandelen en fietsen.
Geniet van uw vakantie in het vakantiehuis bij het strand!
Vakantiehuis
Slaapkamer (nr. 1) - 2 Slaapplaatsen. (2-persoonsbed(den)).
Slaapkamer (nr. 2) - 2 Slaapplaatsen. (2-persoonsbed(den)).
Slaapkamer (nr. 3) - 2 Slaapplaatsen. (1-persoonsbed(den)).
Woonkamer
Keuken
Badkamer (nr. 1) - Toilet: warm en koud water. Douche
Terras of vergelijkbaar - Open en overdekt terras
7 nachten
Vanaf
€ 667,-
Incl. schoonmaak
Prijzen en kalender
Prijs
Periode
- Aankomst
- Vertrek
- Duur
- 1 week
Personen
Tot 6 personen
Let op
Aankomst is niet geselecteerd.