Gezellig houten vakantiehuis met groot terras en tuin
Stubbegårdsparken - Næsby Strand - 4900 - Nakskov
Objectnr: 130-K10722
Ontspan in dit houten vakantiehuis op Lolland met groot terras en tuin, vlakbij natuur en strand.
Beschrijving
Breng ontspannen dagen door in dit houten huis met een beschut terras en ruime tuin.
Geniet van je vakantie in je gezellige vakantiehuis, dat je een traditionele zomerhuis-sfeer biedt en veel ruimte om samen tijd door te brengen. De goede locatie op het eiland Lolland creëert de beste voorwaarden voor ontspannen dagen dicht bij de natuur. Stap binnen in de open woonkamer met balkenplafond, houtkachel en gezellige zithoek. Maak het jezelf hier gemakkelijk na een wandeling, lees een boek of kijk samen een film. Kook je favoriete gerechten in de functionele keuken en serveer ze aan de eettafel met uitzicht naar buiten.
Maak gebruik van het grote houten terras, dat wordt afgeschermd door een hek, ideaal voor gezinnen met kleine kinderen of hondenbezitters. Breng gezellige uren door in de frisse lucht, of het nu gaat om een ontbijt in de zon of een barbecue onder het overdekte gedeelte. Het grote grasveld rond het huis nodigt uit tot spelen, zonnebaden of gewoon ontspannen.
Verken de charmante omgeving van Næsby Strand. Ga wandelen langs de Oostzeekust of bezoek het nabijgelegen Knuthenborg Safaripark, een geweldige ervaring voor het hele gezin. Ontdek het havenstadje Nakskov met zijn charmante oude binnenstad of rijd naar Dodekalitten, een modern stenen beeldencomplex in een indrukwekkend landschap.
Vakantiehuis
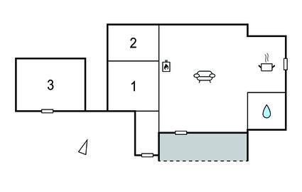
Slaapkamer (nr. 1) - 2 Slaapplaatsen. (2-persoonsbed(den)).
Slaapkamer (nr. 2) - 2 Slaapplaatsen. (1-persoonsbed(den)).
Eetkeuken
Badkamer (nr. 1) - Toilet: warm en koud water. Douche
Terras of vergelijkbaar - Open en overdekt terras
Annex 1
Slaapkamer (nr. 1) - 2 Slaapplaatsen. (2-persoonsbed(den)).
Geniet van je vakantie in je gezellige vakantiehuis, dat je een traditionele zomerhuis-sfeer biedt en veel ruimte om samen tijd door te brengen. De goede locatie op het eiland Lolland creëert de beste voorwaarden voor ontspannen dagen dicht bij de natuur. Stap binnen in de open woonkamer met balkenplafond, houtkachel en gezellige zithoek. Maak het jezelf hier gemakkelijk na een wandeling, lees een boek of kijk samen een film. Kook je favoriete gerechten in de functionele keuken en serveer ze aan de eettafel met uitzicht naar buiten.
Maak gebruik van het grote houten terras, dat wordt afgeschermd door een hek, ideaal voor gezinnen met kleine kinderen of hondenbezitters. Breng gezellige uren door in de frisse lucht, of het nu gaat om een ontbijt in de zon of een barbecue onder het overdekte gedeelte. Het grote grasveld rond het huis nodigt uit tot spelen, zonnebaden of gewoon ontspannen.
Verken de charmante omgeving van Næsby Strand. Ga wandelen langs de Oostzeekust of bezoek het nabijgelegen Knuthenborg Safaripark, een geweldige ervaring voor het hele gezin. Ontdek het havenstadje Nakskov met zijn charmante oude binnenstad of rijd naar Dodekalitten, een modern stenen beeldencomplex in een indrukwekkend landschap.
Vakantiehuis
Slaapkamer (nr. 1) - 2 Slaapplaatsen. (2-persoonsbed(den)).
Slaapkamer (nr. 2) - 2 Slaapplaatsen. (1-persoonsbed(den)).
Eetkeuken
Badkamer (nr. 1) - Toilet: warm en koud water. Douche
Terras of vergelijkbaar - Open en overdekt terras
Annex 1
Slaapkamer (nr. 1) - 2 Slaapplaatsen. (2-persoonsbed(den)).
7 nachten
Vanaf
€ 467,-
Incl. schoonmaak
Prijzen en kalender
Prijs
Periode
- Aankomst
- Vertrek
- Duur
- 1 week
Personen
Tot 6 personen
Let op
Aankomst is niet geselecteerd.
Opmerkingen