Gezellig vakantiehuis met zwembad en sauna
Midsommervej - Nørlev - 9800 - Hjørring
Objectnr: 121-10-8240
Comfortabel vakantiehuis met binnenzwembad, sauna, whirlpool en dichtbij zee in Denemarken.
Beschrijving
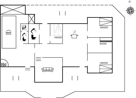
Inrichting
Vakantiehuis is geschikt voor 8 personen en 1 kinderen tot 3 jaar. De vakantiewoning heeft een oppervlakte van 150 m2 en is gebouwd in 1992. In 2002 ondergingen de vakantiewoning een gedeeltelijke renovatie. Het is niet toegestaan om huisdieren mee te nemen. De vakantiewoning is uitgerust met 1 energiezuinige lucht-naar-water-warmtepomp en 1 energiezuinige lucht-naar-lucht-warmtepomp. Vloerverwarming in de gang. De vakantiewoning heft Wasmachine. Wasdroge. Vriezer capaciteit van 60 liter. Er is daarnaast houtkachel. Voor de kleintjes 1 stukken Kinderstoel.
Buiten
De vakantiewoning is gelegen op een 1800 m² groot natuural grond. Afstand tot de zee 425 m. Dichtstbijzijnde winkel 500 m. Bij de vakantiewoning hoort terras. Schommel. Zandbak. Barbecue. Parkeerplaats bij het huis.
Zwembad
Het binnenzwembad biedt de gelegenheid om heerlijk te spelen en gezellig samen te zijn. Het zwembad is 3,5 m breed, 5 m lang en tot 1,5 m diep. Het water heeft een temperatuur tussen de 24 en 28 °C. Het binnenzwembad heeft een tegenstroominstallatie. Er is vloerverwarming in het zwembadgebied.
Slaapomstandigheden
Er zijn in totaal 4 slaapkamers. De slaapplaatsen zijn als volgt verdeeld: 4 slaapplaatsen in tweepersoonsbedden. 2 slaapplaatsen in stapelbed. 2 slaapplaatsen in slaapbanken (tweepersoons).2 slaapplaatsen op matrassen. 2 van deze slaapplaatsen bevinden zich in de open slaapzolder. Verder is kinderbed ter beschikking.
Keuken
De keuken is uitgerust met koelkast Er is 4 inductiekookplaten, heteluchtoven, magnetron en vaatwasser. Vloerverwarming in de keuken.
Douche en toilet
Er is 2 badkamers met douchehok en 2 toiletten De sauna biedt de gelegenheid tot ontspanning.
Bubbelbad
Het binnenbubbelbad (vulwater) biedt ontspanning aan 2 personen.
Multimedia
2 Smart-tv.1 Chromecast. DVD-speler. Tenminste 4 deense zenders. 1-3 sweedse zenders. 1-3 noorse zenders. Tenminste 4 duitse zenders. Draadloos internet.
Goed om te weten
Geen verhuur aan jeugdgroepen waar iedereen tussen de 15 en 25 jaar oud is. Roken niet toegestaan. Bij overtreding van het verbod wordt een boete van minimaal EUR 420,- in rekening gebracht.
Vakantiehuis is geschikt voor 8 personen en 1 kinderen tot 3 jaar. De vakantiewoning heeft een oppervlakte van 150 m2 en is gebouwd in 1992. In 2002 ondergingen de vakantiewoning een gedeeltelijke renovatie. Het is niet toegestaan om huisdieren mee te nemen. De vakantiewoning is uitgerust met 1 energiezuinige lucht-naar-water-warmtepomp en 1 energiezuinige lucht-naar-lucht-warmtepomp. Vloerverwarming in de gang. De vakantiewoning heft Wasmachine. Wasdroge. Vriezer capaciteit van 60 liter. Er is daarnaast houtkachel. Voor de kleintjes 1 stukken Kinderstoel.
Buiten
De vakantiewoning is gelegen op een 1800 m² groot natuural grond. Afstand tot de zee 425 m. Dichtstbijzijnde winkel 500 m. Bij de vakantiewoning hoort terras. Schommel. Zandbak. Barbecue. Parkeerplaats bij het huis.
Zwembad
Het binnenzwembad biedt de gelegenheid om heerlijk te spelen en gezellig samen te zijn. Het zwembad is 3,5 m breed, 5 m lang en tot 1,5 m diep. Het water heeft een temperatuur tussen de 24 en 28 °C. Het binnenzwembad heeft een tegenstroominstallatie. Er is vloerverwarming in het zwembadgebied.
Slaapomstandigheden
Er zijn in totaal 4 slaapkamers. De slaapplaatsen zijn als volgt verdeeld: 4 slaapplaatsen in tweepersoonsbedden. 2 slaapplaatsen in stapelbed. 2 slaapplaatsen in slaapbanken (tweepersoons).2 slaapplaatsen op matrassen. 2 van deze slaapplaatsen bevinden zich in de open slaapzolder. Verder is kinderbed ter beschikking.
Keuken
De keuken is uitgerust met koelkast Er is 4 inductiekookplaten, heteluchtoven, magnetron en vaatwasser. Vloerverwarming in de keuken.
Douche en toilet
Er is 2 badkamers met douchehok en 2 toiletten De sauna biedt de gelegenheid tot ontspanning.
Bubbelbad
Het binnenbubbelbad (vulwater) biedt ontspanning aan 2 personen.
Multimedia
2 Smart-tv.1 Chromecast. DVD-speler. Tenminste 4 deense zenders. 1-3 sweedse zenders. 1-3 noorse zenders. Tenminste 4 duitse zenders. Draadloos internet.
Goed om te weten
Geen verhuur aan jeugdgroepen waar iedereen tussen de 15 en 25 jaar oud is. Roken niet toegestaan. Bij overtreding van het verbod wordt een boete van minimaal EUR 420,- in rekening gebracht.
7 nachten
Vanaf
€ 809,-
Optionele schoonmaak: EUR 208,-
Prijzen en kalender
Prijs
Periode
- Aankomst
- Vertrek
- Duur
- 1 week
Personen
Tot 8 personen
Let op
Aankomst is niet geselecteerd.
3 externe beoordelingen