Gerenoveerd landhuis met privévisvijver in Ibsker
Paradisbakkevejen - Nexø - 3740 - Svaneke
Objectnr: 130-I61472
Geniet van een gerenoveerd landhuis met privévisvijver en prachtig natuurzicht in het rustige Ibsker, nabij Svaneke.
Beschrijving
Mooi landhuis op een groot, met uitzicht beschermd natuurperceel met privé visvijver op slechts 300 m van het huis.
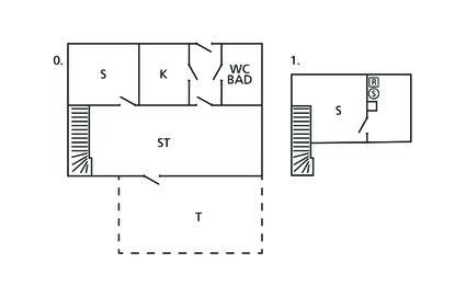
Het vakantiehuis met twee verdiepingen is gerenoveerd en goed ingericht. Het hart van het huiselijke leven is de woon- en eetkamer op de begane grond, waar u films kunt kijken, naar de radio of muziek kunt luisteren en op koude dagen naar het knisperen van de vlammen in de houtkachel kunt luisteren (brandhout is inbegrepen). Hier staat ook een tweepersoonsslaapbank (135 cm). Verder is er op de begane grond een slaapkamer, een goed uitgeruste keuken en een badkamer met wasmachine en vloerverwarming. Op de 1e verdieping is er nog een slaapkamer (zonder deur). Het huis heeft een mooie aanbouw (30 m2 van de in totaal 108 m2) met een slaapkamer met een tweepersoonsbed en een heel gezellige zolder met open ruimte concept, twee matrassen en toilet.
Het huis heeft een uitnodigend terras met buitenmeubilair en een barbecue. Hier kunt u het uzelf gemakkelijk maken terwijl u geniet van het uitzicht op de rustige, groene omgeving.
U verblijft in het dorpje Ibsker net buiten het gezellige stadje Svaneke, in een gebied dat veel natuur en, niet in de laatste plaats, veel rust biedt. Tegelijkertijd bent u slechts 10 minuten rijden van Svaneke en een geweldig zandstrand. Als u van vissen houdt, hoeft u alleen maar uw hengel over uw schouder te leggen en een paar stappen te lopen naar het nabijgelegen privévismeer. U verblijft dicht bij enkele van de beroemdste bezienswaardigheden van het eiland, zoals de Rokkestenen of de Østerlars ronde kerk.
Verheug u op een ontspannende vakantie in dit mooie vakantiehuis in een schilderachtige omgeving.
Vakantiehuis
Slaapkamer (nr. 1) - 2 Slaapplaatsen. (2-persoonsbed(den)).
Slaapkamer (nr. 2) - 2 Slaapplaatsen. (2-persoonsbed(den)).
Woonkamer - 2 Slaapplaatsen. (Opklapbed(den) of matras(sen)).
Keuken
Badkamer (nr. 1) - Toilet: warm en koud water. Douche
Terras of vergelijkbaar - Open terras
Annex 1
Slaapkamer 30m2 (nr. 1) - 2 Slaapplaatsen. (2-persoonsbed(den)).
Vide 30m2 - 2 Slaapplaatsen. (Matras).
Het vakantiehuis met twee verdiepingen is gerenoveerd en goed ingericht. Het hart van het huiselijke leven is de woon- en eetkamer op de begane grond, waar u films kunt kijken, naar de radio of muziek kunt luisteren en op koude dagen naar het knisperen van de vlammen in de houtkachel kunt luisteren (brandhout is inbegrepen). Hier staat ook een tweepersoonsslaapbank (135 cm). Verder is er op de begane grond een slaapkamer, een goed uitgeruste keuken en een badkamer met wasmachine en vloerverwarming. Op de 1e verdieping is er nog een slaapkamer (zonder deur). Het huis heeft een mooie aanbouw (30 m2 van de in totaal 108 m2) met een slaapkamer met een tweepersoonsbed en een heel gezellige zolder met open ruimte concept, twee matrassen en toilet.
Het huis heeft een uitnodigend terras met buitenmeubilair en een barbecue. Hier kunt u het uzelf gemakkelijk maken terwijl u geniet van het uitzicht op de rustige, groene omgeving.
U verblijft in het dorpje Ibsker net buiten het gezellige stadje Svaneke, in een gebied dat veel natuur en, niet in de laatste plaats, veel rust biedt. Tegelijkertijd bent u slechts 10 minuten rijden van Svaneke en een geweldig zandstrand. Als u van vissen houdt, hoeft u alleen maar uw hengel over uw schouder te leggen en een paar stappen te lopen naar het nabijgelegen privévismeer. U verblijft dicht bij enkele van de beroemdste bezienswaardigheden van het eiland, zoals de Rokkestenen of de Østerlars ronde kerk.
Verheug u op een ontspannende vakantie in dit mooie vakantiehuis in een schilderachtige omgeving.
Vakantiehuis
Slaapkamer (nr. 1) - 2 Slaapplaatsen. (2-persoonsbed(den)).
Slaapkamer (nr. 2) - 2 Slaapplaatsen. (2-persoonsbed(den)).
Woonkamer - 2 Slaapplaatsen. (Opklapbed(den) of matras(sen)).
Keuken
Badkamer (nr. 1) - Toilet: warm en koud water. Douche
Terras of vergelijkbaar - Open terras
Annex 1
Slaapkamer 30m2 (nr. 1) - 2 Slaapplaatsen. (2-persoonsbed(den)).
Vide 30m2 - 2 Slaapplaatsen. (Matras).
De prijs kan niet worden berekend met de geselecteerde periode.
Prijzen en kalender
Duur
Aankomst
-
december 2026
ma di wo do vr za zo 49 1 2 3 4 5 6 50 7 8 9 10 11 12 13 51 14 15 16 17 18 19 20 52 21 22 23 24 25 26 27 53 28 29 30 31 1 -
januari 2027
ma di wo do vr za zo 53 1 2 3 1 4 5 6 7 8 9 10 2 11 12 13 14 15 16 17 3 18 19 20 21 22 23 24 4 25 26 27 28 29 30 31 5
Kijk of het object beschikbaar is op de geselecteerde datum
Vrij
Bezet
Aankomst mogelijk
Prijs
Periode
- Aankomst
- Vertrek
- Duur
- 2 nachten
Personen
Tot 6 personen
Let op
Aankomst is niet geselecteerd.
Opmerkingen