Molsvej - Søndervig - 6950 - Ringkøbing

Objectnr: 328-148121
  • Personen
    6 personen
  • Slaapkamers3 Slaapkamers
  • Badkamers2 Badkamers
  • Woonoppervlakte110 m² Woonoppervlakte
  • HuisdierenNiet toegestaan Huisdieren

Beschrijving

De beschrijving is helaas niet beschikbaar in het Nederlands. Bekijk de tekst hieronder in het Engels of bekijk de automatisch vertaalde tekst in Nederlands.

If you're looking for holiday accommodation for two families or two couples where each group can enjoy their own private space, you should definitely consider this holiday home at Molsvej 13 in Søndervig. Here, you'll find two separate holiday homes waiting for you. Electric vehicle drivers will appreciate the Orbis charging point at the holiday home.

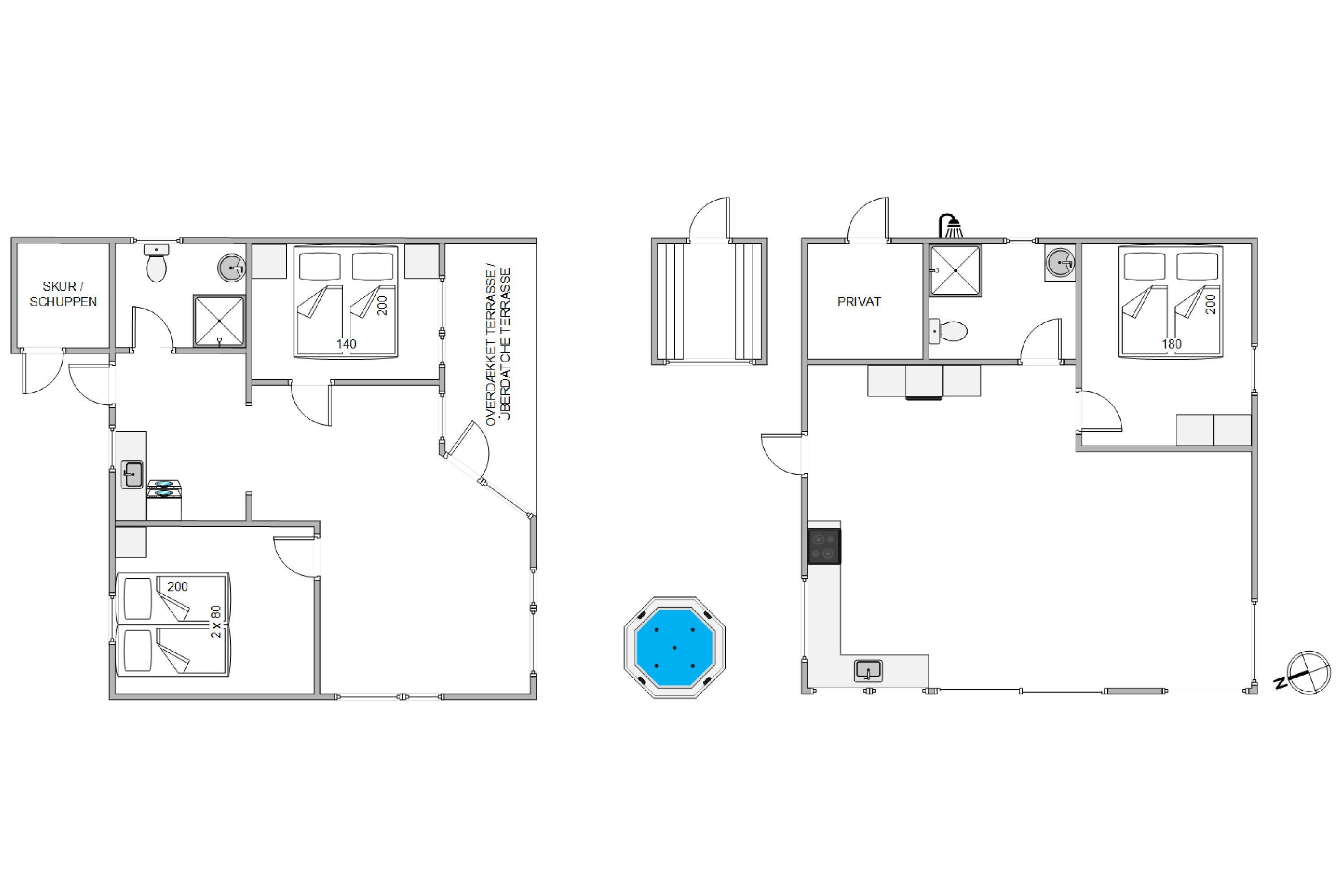
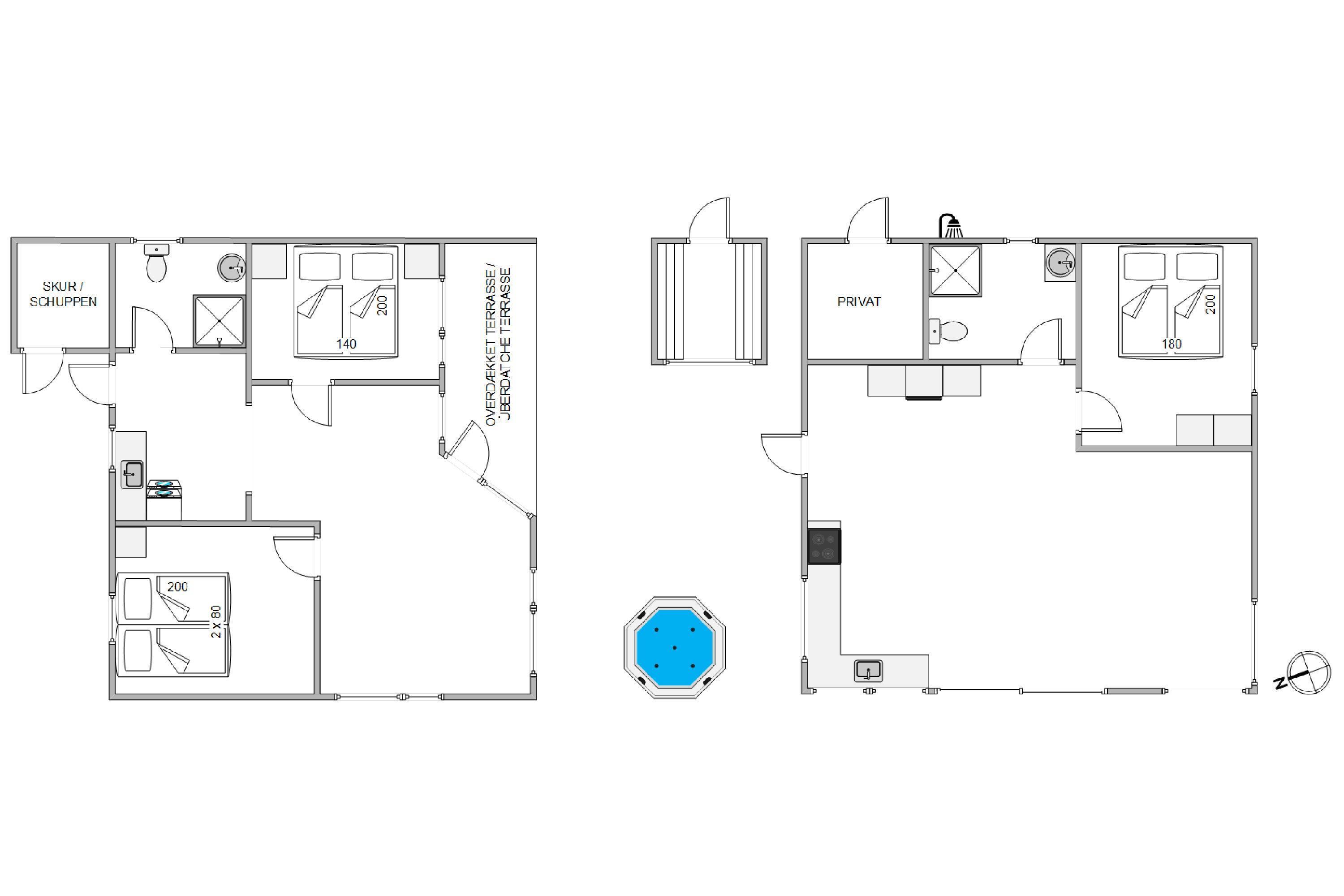
Two well-equipped holiday homes on one plot

The main house, newly built in 2022, will be the heart of your holiday. It features a well-equipped kitchen perfect for social cooking. The dining table accommodates all guests, ideal for enjoying meals together and planning upcoming holiday activities. Thanks to the two separate houses, each family can retreat to their own private space.

Both houses are bright and welcoming with comfortable furnishings. The main house includes a kitchen, a bathroom, and a bedroom with a double bed. The annexe features two additional bedrooms, also with double beds, and a bathroom. It's also equipped with a washing machine and tumble dryer. There's an additional refrigerator that can be connected if needed.

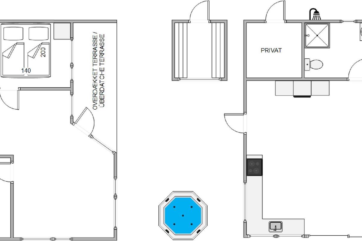
Barrel sauna and outdoor hot tub with panoramic views

The houses are connected by a large terrace, well-furnished with garden furniture and sun loungers. On warm summer evenings, you can prepare a delicious barbecue while listening to the sound of the North Sea in the background. Located just 300 metres from the roaring North Sea, you can enjoy a peaceful and relaxing holiday here.

Daily beach walks offer an escape from everyday life, and back at the holiday home, you can immerse yourself in your own little wellness retreat. The highlight of the terrace is the barrel sauna and outdoor hot tub. From both, you'll enjoy magnificent views over the dunes and beautiful natural surroundings. The outdoor shower is available for use from April to November.

Panoramic views at Molsvej 13

Your holiday residence sits on a dune plot, with steps leading to an even higher vantage point. At the top, you'll find a bench where you can truly appreciate the panoramic views and watch the sunset with a cool drink in hand. There's hardly a better way to end the day.

7 nachten
Vanaf 1.004,-
Incl. schoonmaak

Prijzen en kalender

Duur
Aankomst
Vorige Volgende
  • april 2026
    madiwodovrzazo
    1412345
    156789101112
    1613141516171819
    1720212223242526
    1827282930
    19
  • mei 2026
    madiwodovrzazo
    18123
    1945678910
    2011121314151617
    2118192021222324
    2225262728293031
    23
   Kijk of het object beschikbaar is op de geselecteerde datum
Vrij
Bezet
   Aankomst mogelijk

Prijs

Periode
Aankomst
Vertrek
Duur
1 week
Personen
Tot 6 personen

Let op

Aankomst is niet geselecteerd.
Contract- en huurvoorwaarden

Indeling & inrichting

Ligging & omgeving

Locatie pin Kaart Denemarken

Onze gastbeoordelingen Externe beoordelingen

4,0 gemiddeld 1 waardering
5
(0)
4
(1)
3
(0)
2
(0)
1
(0)

Opmerkingen

Geen beoordelingen hebben commentaar op Nederlands
Beoordeling van 1 bevat commentaar in een andere taal.

Klantenservice

Stel ons een vraag over dit object

Klik hier om ons een vraag over dit object te sturen.