Holdvej - Søndervig - 6950 - Ringkøbing

Objectnr: 328-527134
  • Personen
    5 personen
  • Slaapkamers3 Slaapkamers
  • Badkamers1 Badkamers
  • Woonoppervlakte70 m² Woonoppervlakte
  • Huisdieren1 Huisdieren

Beschrijving

De beschrijving is helaas niet beschikbaar in het Nederlands. Bekijk de tekst hieronder in het Engels of bekijk de automatisch vertaalde tekst in Nederlands.

Located just 109 yards (100 metres) from the beach, this holiday home is ready for your next holiday! Situated at Holdvej 66 in Søndervig, this welcoming holiday home accommodates up to 5 people in peaceful surroundings. Dogs are also welcome here.

Holdvej 66 - Excellent location just 109 yards from the beach

The holiday home at Holdvej 66 in Søndervig enjoys a fantastic location in beautiful, peaceful surroundings. The beach is just 109 yards from the house, and whilst relaxing in the outdoor areas, you can hear the sound of the waves in the background.

With the beach so close by, it's just a short walk away. You can take walks along the wide sandy beaches at any time and enjoy a refreshing swim in the sea on hot summer days.

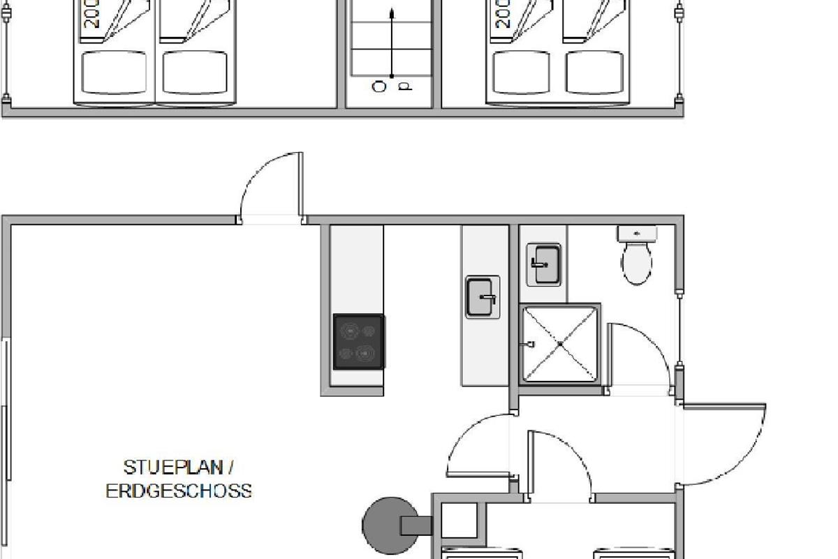
Welcoming two-storey layout

This two-storey holiday home invites you to unwind with its comfortable furnishings, ensuring you'll feel right at home. The first floor features 2 of the 3 bedrooms. Both first-floor bedrooms are furnished with double beds and offer lovely views over the surrounding countryside.

On the ground floor, you'll find the third bedroom with twin beds, the bathroom, and an open-plan living space combining the kitchen, living room, and dining area. The living area is perfect for cosy moments cooking, playing games, and watching films - you can even stream your favourite shows via Chromecast. The living room also offers splendid views of the surrounding landscape.

Outdoor space with multiple terraces, beautiful surroundings and the sound of the sea

The holiday home features multiple outdoor terraces. To the northeast, there's a smaller terrace where you can enjoy your first cup of coffee of the day while others are still sleeping.

The second terrace is larger and catches the sun throughout most of the day. Make yourself comfortable on the garden furniture and truly enjoy the sunshine, beautiful surroundings, and the sound of the waves in the background. In the evening, prepare a delicious dinner on the gas barbecue.

*Electric car charging point available from January 2025

De prijs kan niet worden berekend met de geselecteerde periode.

Prijzen en kalender

Duur
Aankomst
Volgende
  • maart 2026
    madiwodovrzazo
    91
    102345678
    119101112131415
    1216171819202122
    1323242526272829
    143031
  • april 2026
    madiwodovrzazo
    1412345
    156789101112
    1613141516171819
    1720212223242526
    1827282930
    19
   Kijk of het object beschikbaar is op de geselecteerde datum
Vrij
Bezet
   Aankomst mogelijk

Prijs

Periode
Aankomst
Vertrek
Duur
Personen
Tot 5 personen

Let op

Aankomst is niet geselecteerd.
Duur is niet geselecteerd.
Contract- en huurvoorwaarden

Indeling & inrichting

Ligging & omgeving

Locatie pin Kaart Denemarken

Klantenservice

Stel ons een vraag over dit object

Klik hier om ons een vraag over dit object te sturen.