Gezellig energiezuinig vakantiehuis met tuin
Gennemløbet - Sanddobberne Strand - 4571 - Grevinge
Objectnr: 130-E16705
Comfortabel en energiezuinig vakantiehuis met tuin in Grevinge, Denemarken, perfect voor een ontspannen gezinsvakantie.
Beschrijving
Geniet van een harmonieuze vakantie in dit comfortabele vakantiehuis met tuin op een idyllische locatie.
Dit gezellige, energiezuinige huis op de begane grond verwelkomt je met een licht en gezellig interieur. Verheug je op gezellige maaltijden aan de uitnodigende eettafel en geniet van het uitzicht op het groen, terwijl je het jezelf comfortabel maakt in de gezellige woonkamer voor ontspannende uurtjes lezen bij de houtkachel of het spelen van een bordspel.
Geniet van de vredige sfeer tijdens het ontbijt op het terras terwijl je kinderen rondrennen op het ruime gazon of een picknick organiseren. Trakteer jezelf op een glas wijn in het gezellige loungemeubel en doe nieuwe energie op in de ligstoel.
Maak een kanotocht op de Lammefjord of ga zonnebaden op het lange zandstrand bij Gudmindrup Lyng. Bezoek het charmante stadje Holbæk met zijn haven, kleine boetiekjes en uitstekende restaurants of ontdek de fascinerende geschiedenis in het Odsherred Museum. Voor natuurliefhebbers raden we een uitstapje aan naar het UNESCO Global Geopark Odsherred met zijn unieke landschappen en wandelpaden.
Vakantiehuis
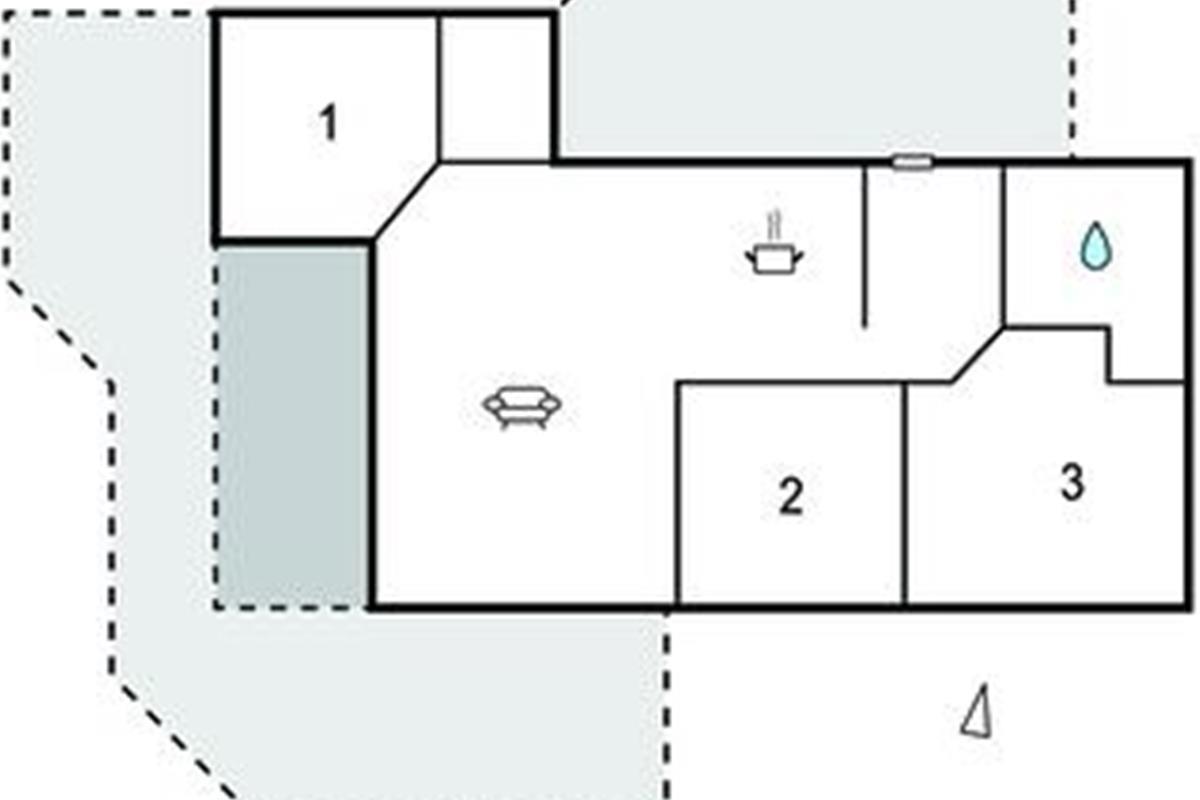
Slaapkamer (nr. 1) - 2 Slaapplaatsen. (2-persoonsbed(den)).
Slaapkamer (nr. 2) - 2 Slaapplaatsen. (1-persoonsbed(den)).
Slaapkamer (nr. 3) - 2 Slaapplaatsen. (1-persoonsbed(den)).
Keuken
Badkamer (nr. 1) - Toilet: warm en koud water. Douche
Terras of vergelijkbaar - Open en overdekt terras
Dit gezellige, energiezuinige huis op de begane grond verwelkomt je met een licht en gezellig interieur. Verheug je op gezellige maaltijden aan de uitnodigende eettafel en geniet van het uitzicht op het groen, terwijl je het jezelf comfortabel maakt in de gezellige woonkamer voor ontspannende uurtjes lezen bij de houtkachel of het spelen van een bordspel.
Geniet van de vredige sfeer tijdens het ontbijt op het terras terwijl je kinderen rondrennen op het ruime gazon of een picknick organiseren. Trakteer jezelf op een glas wijn in het gezellige loungemeubel en doe nieuwe energie op in de ligstoel.
Maak een kanotocht op de Lammefjord of ga zonnebaden op het lange zandstrand bij Gudmindrup Lyng. Bezoek het charmante stadje Holbæk met zijn haven, kleine boetiekjes en uitstekende restaurants of ontdek de fascinerende geschiedenis in het Odsherred Museum. Voor natuurliefhebbers raden we een uitstapje aan naar het UNESCO Global Geopark Odsherred met zijn unieke landschappen en wandelpaden.
Vakantiehuis
Slaapkamer (nr. 1) - 2 Slaapplaatsen. (2-persoonsbed(den)).
Slaapkamer (nr. 2) - 2 Slaapplaatsen. (1-persoonsbed(den)).
Slaapkamer (nr. 3) - 2 Slaapplaatsen. (1-persoonsbed(den)).
Keuken
Badkamer (nr. 1) - Toilet: warm en koud water. Douche
Terras of vergelijkbaar - Open en overdekt terras
7 nachten
Vanaf
€ 537,-
Incl. schoonmaak
Prijzen en kalender
Prijs
Periode
- Aankomst
- Vertrek
- Duur
- 1 week
Personen
Tot 6 personen
Let op
Aankomst is niet geselecteerd.
3 externe beoordelingen