Gezellig vakantiehuis met zeezicht en zwembad
Madseløkke 5, Hus nr. - Sandvig - 3770 - Allinge
Objectnr: 130-I68417
Gezellig halfvrijstaand vakantiehuis met deels zeezicht, nabij strand en speeltuin, ideaal voor gezinnen of stellen.
Beschrijving
Gezellige halfvrijstaande woning met zeezicht, prachtig gelegen boven de Allinge Sandvig gemeenschap.
Welkom in dit gezellige vakantiehuis, geschikt voor zowel een stel als een gezin met kinderen. Het hart van het huis is de keuken-woonkamer, waar u kunt ontspannen, tv kijken, naar de radio of muziek luisteren en uw favoriete gerechten kunt bereiden en genieten. De keuken heeft een magnetron en twee kookplaten. In de woonkamer staat een tweepersoonsslaapbank (140 cm).
Vanuit de woonkamer heeft u toegang tot een mooi houten terras met buitenmeubilair, een barbecue voor gemeenschappelijke barbecues en toegang tot een grote gemeenschappelijke tuin en speeltuin direct bij het huis. U heeft ook toegang tot een gemeenschappelijke wasmachine, droger en verwarmd buitenzwembad. Het huis beschikt over gratis, snelle en onbeperkte Wi-Fi. Een praktisch, gastvrij huis voor een gezin met kinderen of voor een stel.
Bezoek zeker de gezellige gemeenschap Allinge-Sandvig met zijn goede winkels, restaurants en meer. U verblijft dicht bij enkele van de populairste bestemmingen van het eiland, zoals de adembenemende Helligdomsklipperne of de indrukwekkende ruïnes van het Hammerhus-kasteel. U bereikt een uitstekend zwemstrand op slechts 1 kilometer afstand, waar u urenlang kunt genieten van de zon en de zee. Het is slechts 400 meter naar het dichtstbijzijnde stuk kust, waar u prachtige wandelingen kunt maken.
Kijk uit naar een geweldige vakantie!
De advertentie I68418 grenst aan.
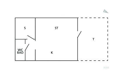
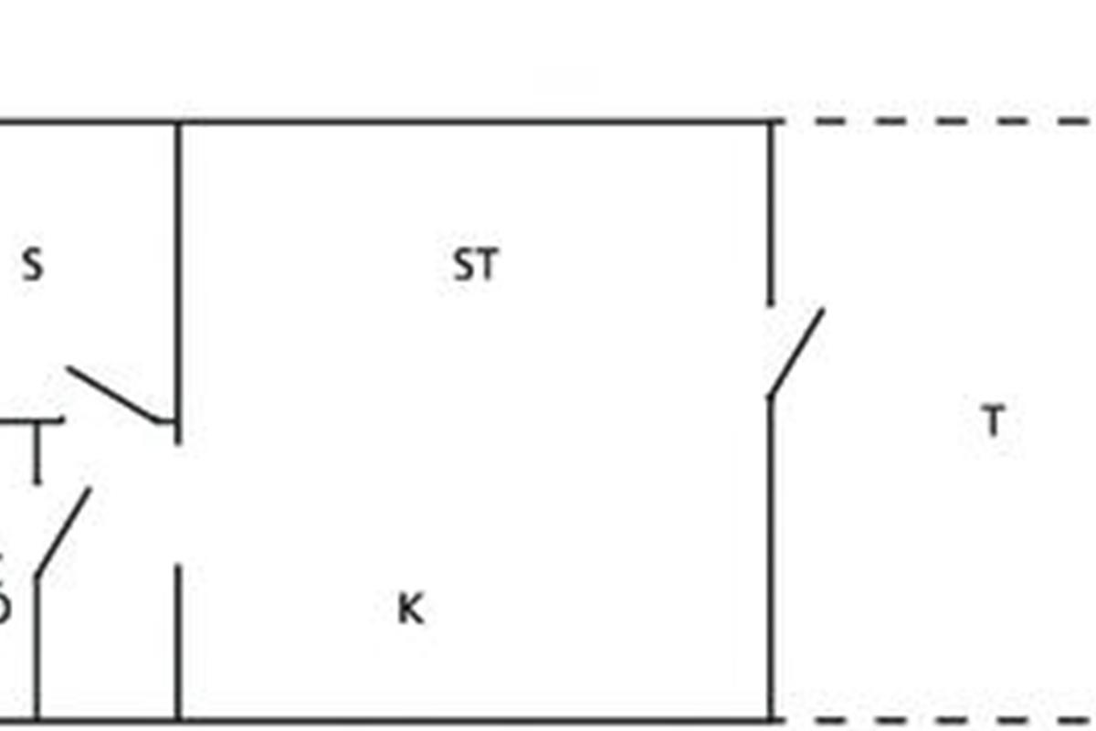
Vakantiehuis
Slaapkamer (nr. 1) - 2 Slaapplaatsen. (Stapelbed).
Woonkamer - 2 Slaapplaatsen. (Opklapbed(den) of matras(sen)).
Eetkeuken
Badkamer (nr. 1) - Toilet: warm en koud water. Douche
Terras of vergelijkbaar - Open terras
Welkom in dit gezellige vakantiehuis, geschikt voor zowel een stel als een gezin met kinderen. Het hart van het huis is de keuken-woonkamer, waar u kunt ontspannen, tv kijken, naar de radio of muziek luisteren en uw favoriete gerechten kunt bereiden en genieten. De keuken heeft een magnetron en twee kookplaten. In de woonkamer staat een tweepersoonsslaapbank (140 cm).
Vanuit de woonkamer heeft u toegang tot een mooi houten terras met buitenmeubilair, een barbecue voor gemeenschappelijke barbecues en toegang tot een grote gemeenschappelijke tuin en speeltuin direct bij het huis. U heeft ook toegang tot een gemeenschappelijke wasmachine, droger en verwarmd buitenzwembad. Het huis beschikt over gratis, snelle en onbeperkte Wi-Fi. Een praktisch, gastvrij huis voor een gezin met kinderen of voor een stel.
Bezoek zeker de gezellige gemeenschap Allinge-Sandvig met zijn goede winkels, restaurants en meer. U verblijft dicht bij enkele van de populairste bestemmingen van het eiland, zoals de adembenemende Helligdomsklipperne of de indrukwekkende ruïnes van het Hammerhus-kasteel. U bereikt een uitstekend zwemstrand op slechts 1 kilometer afstand, waar u urenlang kunt genieten van de zon en de zee. Het is slechts 400 meter naar het dichtstbijzijnde stuk kust, waar u prachtige wandelingen kunt maken.
Kijk uit naar een geweldige vakantie!
De advertentie I68418 grenst aan.
Vakantiehuis
Slaapkamer (nr. 1) - 2 Slaapplaatsen. (Stapelbed).
Woonkamer - 2 Slaapplaatsen. (Opklapbed(den) of matras(sen)).
Eetkeuken
Badkamer (nr. 1) - Toilet: warm en koud water. Douche
Terras of vergelijkbaar - Open terras
7 nachten
Vanaf
€ 374,-
Incl. consumption
Optionele schoonmaak: EUR 80,-
Prijzen en kalender
Prijs
Periode
- Aankomst
- Vertrek
- Duur
- 1 week
Personen
Tot 4 personen
Let op
Aankomst is niet geselecteerd.
1 externe beoordeling