Højby Lyngvej - Sejerø Bugt - Lyngområderne - 4573 - Højby

Objectnr: 035-13305-1
  • Personen
    6 personen
  • Slaapkamers4 Slaapkamers
  • Badkamers2 Badkamers
  • Woonoppervlakte93 m² Woonoppervlakte
  • Huisdieren1 Huisdieren

Beschrijving

De beschrijving is helaas niet beschikbaar in het Nederlands. Bekijk de tekst hieronder in het Duits of bekijk de automatisch vertaalde tekst in Nederlands.

Dieses ganz besondere Ferienhaus, das einem Architekten gehört, lädt zu erholsamen Urlaubtagen in fantastischer Umgebung ein. Sie wohnen nah an einem der besten Sandstrände Dänemarks. Dieses Haus möchten wir Urlaubern, die das Außergewöhnliche schätzen, besonders ans Herz legen.

Einrichtung
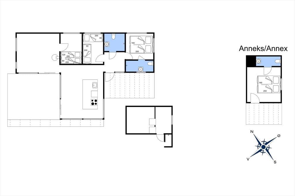
Beim Hauseingang erwartet Sie eine sehr attraktive, mit Glas überdachte Terrasse, die angenehm windgeschützt ist und vormittags mit Sonne verwöhnt. Das Ferienhaus ist förmlich um eine große, offene Nachmittag-/Abendterrasse herum gebaut. Große Glasflächen bedingen einen fantastischen Tageslichteinfall und einen gleitenden Übergang zwischen Hausinnerem und Außenbereich. Die beiden Wohnräume sind mit der Terrasse durch große Schiebetüren verbunden. Sie können sich in aller Ruhe in ein Buch vertiefen, Karten spielen und die Mahlzeiten in der Küche mit hohen Decken und Ausblick auf den Himmel zubereiten. Der Essplatz wird durch eine lange Tafel geprägt, die Küche durch eine Kücheninsel. Die Kücheninsel ist groß und bietet viel Platz für diejenigen, die bei der Essenzubereitung helfen. Gemütliche Ecken stehen hingegen für diejenigen bereit, die nicht helfen, aber das Beisammensein mit Ihnen genießen möchten. Sämtliche Räumlichkeiten sind mit in Form und Funktion perfekt aufeinander abgestimmten Möbelstücken eingerichtet. Dies gilt auch für die beiden Badezimmer und die drei Schlafräume mit jeweils zwei Schlafplätzen.

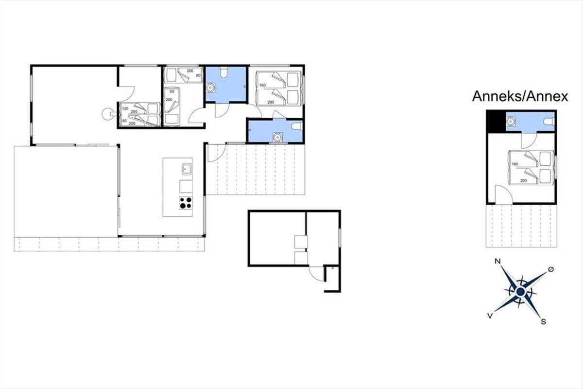
Ein wenig abseits steht ihnen ein kleines, richtig schönes Nebengebäude zur Verfügung, das ein Doppelbett und ein Gäste-WC beinhaltet. Das gesamte Urlaubsdomizil wurde aus außergewöhnlich guten Materialien errichtet und besticht mit vielen ganz besonderen Details und japanisch inspirierten Holzkonstruktionen.

Das umzäunte Naturgrundstück verfügt über "Inseln" aus hohem Gras und Bäumen. Dazwischen wird die Grasfläche kurzgehalten, sodass Sie beispielsweise Fußball spielen können. Die fantastische Terrasse verwöhnt mit viel Sonne. Mit ein wenig Glück beobachten Sie hin und wieder Rehe. Nach einen Abstecher an den Strand spült Ihnen die Außendusche den Sand und das Salz des Meeres von der Haut.

Lage / Umgebung
Das Ferienhaus befindet sich in einem schönen Gebiet in der Nähe des Waldgebiets Ellinge Skov. Rund zehn Minuten trennen Sie von einem tollen Sandstrand. Der Strand ist ungefähr einen Kilometer entfernt und durch das einzigartige Naturgebiet "Korevlerne" zu erreichen. Alternativ können Sie an den wenige Kilometer entfernten Gudmindrup Strand mit einem Grillimbiss und einer Eisbude fahren. Der Gudmindrup Strand zählt zu den absolut besten Stränden Dänemarks. An beide Strände dürfen Sie Hunde mitnehmen. Schnell erreicht ist außerdem Ellinge Lyng mit Restaurants, einer Minigolfanlage und einem Eisladen, der für seine großen Waffeln bekannt ist. Golfspieler genießen die Wahl zwischen gleich drei Golfplätzen. Naturliebhaber dürfte es in den nahegelegenen Wald ziehen. Generell begeistert der Geopark Odshered mit rund 300 Kilometer langen Radwegen und 30 faszinierenden Wanderrouten. Ihren Kindern werden Sie mit einem Tag im Sommerland Sjælland, in dem Sie auf viele Aktivitätsmöglichkeiten und ein großes Aqualand treffen, ein breites Lachen auf das Gesicht zaubern. Nicht entgehen lassen dürfen Sie sich einen Abstecher zur Fundstelle des legendären Sonnenwagens. Kulinarische Hochgenüsse versprechen die schönen Restaurants der Gegend, von denen zwei sogar einen Michelin-Stern ihr Eigen nennen.


Raumaufteilung

  • Schlafzimmer
    • Einzelbett
    • Einzelbett
  • Schlafzimmer
    • Etagenbett
  • Schlafzimmer
    • Doppelbett
  • Schlafzimmer
    • Doppelbett
7 nachten
Vanaf 1.320,-
Incl. schoonmaak en verzekering

Prijzen en kalender

Duur
Aankomst
Volgende
  • maart 2026
    madiwodovrzazo
    91
    102345678
    119101112131415
    1216171819202122
    1323242526272829
    143031
  • april 2026
    madiwodovrzazo
    1412345
    156789101112
    1613141516171819
    1720212223242526
    1827282930
    19
   Kijk of het object beschikbaar is op de geselecteerde datum
Vrij
Bezet
   Aankomst mogelijk

Prijs

Periode
Aankomst
Vertrek
Duur
1 week
Personen
Tot 6 personen

Let op

Aankomst is niet geselecteerd.
Contract- en huurvoorwaarden

Indeling & inrichting

Ligging & omgeving

Locatie pin Kaart Denemarken

Onze gastbeoordelingen Externe beoordelingen

4,0 gemiddeld 1 waardering
5
(0)
4
(1)
3
(0)
2
(0)
1
(0)

Opmerkingen

Geen beoordelingen hebben commentaar.

Klantenservice

Stel ons een vraag over dit object

Klik hier om ons een vraag over dit object te sturen.