Gezellig vakantiehuis met rieten dak in Vemb
Koldborgvej - Skalstrup - 7570 - Vemb
Objectnr: 130-C76007
Ontspan in dit charmante vakantiehuis met rieten dak, omgeven door rust en natuur in Vemb, Denemarken.
Beschrijving
Geniet van een ontspannen vakantie in dit gezellige vakantiehuis met rustieke charme.
Omgeven door een idyllische en rustige omgeving, heet dit betoverende huis met rieten dak je welkom. Originele details zorgen voor een gezellige en authentieke sfeer in dit liefdevol gerestaureerde 19e eeuwse huis, waar je je meteen thuis zult voelen. Geniet van de gezelligheid tijdens harmonieuze maaltijden, vrolijke spelletjesavonden en ontspannende uurtjes lezen bij de knisperende open haard.
Het groene, tegen de wind beschutte terrein biedt je kinderen een prachtig gazon met aantrekkelijke buitenspeelplaatsen. Organiseer een picknick en geniet van de vredige sfeer met een kruidenthee in de frisse lucht.
Geniet van de rustgevende zeelucht tijdens lange wandelingen langs de Noordzeekust en zwem aan de schilderachtige oevers van de Nissum Fjord. Verken charmante dorpjes tijdens fietstochten met het hele gezin, proef regionale specialiteiten in gezellige herbergen of luister naar de stilte van de natuur tijdens het vissen.
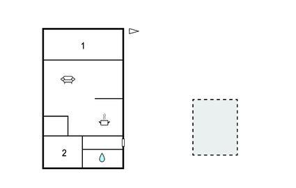
Vakantiehuis
Slaapkamer (nr. 1) - 2 Slaapplaatsen. (Opklapbed(den) of matras(sen)).
Slaapkamer (nr. 2) - 2 Slaapplaatsen. (2-persoonsbed(den)).
Woonkamer met open keuken
Vide - 2 Slaapplaatsen. (1-persoonsbed(den)).
Vide - 2 Slaapplaatsen. (1-persoonsbed(den)).
Badkamer (nr. 1) - Toilet: warm en koud water. Douche
Terras of vergelijkbaar - Overdekt terras
Omgeven door een idyllische en rustige omgeving, heet dit betoverende huis met rieten dak je welkom. Originele details zorgen voor een gezellige en authentieke sfeer in dit liefdevol gerestaureerde 19e eeuwse huis, waar je je meteen thuis zult voelen. Geniet van de gezelligheid tijdens harmonieuze maaltijden, vrolijke spelletjesavonden en ontspannende uurtjes lezen bij de knisperende open haard.
Het groene, tegen de wind beschutte terrein biedt je kinderen een prachtig gazon met aantrekkelijke buitenspeelplaatsen. Organiseer een picknick en geniet van de vredige sfeer met een kruidenthee in de frisse lucht.
Geniet van de rustgevende zeelucht tijdens lange wandelingen langs de Noordzeekust en zwem aan de schilderachtige oevers van de Nissum Fjord. Verken charmante dorpjes tijdens fietstochten met het hele gezin, proef regionale specialiteiten in gezellige herbergen of luister naar de stilte van de natuur tijdens het vissen.
Vakantiehuis
Slaapkamer (nr. 1) - 2 Slaapplaatsen. (Opklapbed(den) of matras(sen)).
Slaapkamer (nr. 2) - 2 Slaapplaatsen. (2-persoonsbed(den)).
Woonkamer met open keuken
Vide - 2 Slaapplaatsen. (1-persoonsbed(den)).
Vide - 2 Slaapplaatsen. (1-persoonsbed(den)).
Badkamer (nr. 1) - Toilet: warm en koud water. Douche
Terras of vergelijkbaar - Overdekt terras
7 nachten
Vanaf
€ 377,-
Prijzen en kalender
Prijs
Periode
- Aankomst
- Vertrek
- Duur
- 1 week
Personen
Tot 6 personen
Let op
Aankomst is niet geselecteerd.