Comfortabel vakantiehuis met bubbelbad en tuin
Harevej - Skaven - 6880 - Tarm
Objectnr: 121-24-2025
Ruim vakantiehuis nabij de fjord met bubbelbad, terras en moderne voorzieningen voor een ontspannen verblijf.
Beschrijving
Inrichting
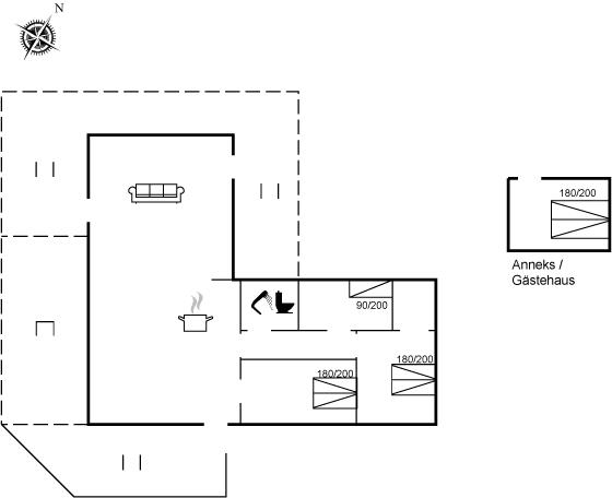
Vakantiehuis is geschikt voor 7 personen. De vakantiewoning heeft een oppervlakte van 93 m2 en is gebouwd in 1971. In 2009 is de vakantiewoning volledig renoveerd. In 2024 ondergingen de vakantiewoning een gedeeltelijke renovatie. Het is toegestaan om 1 huisdieren mee te nemen. De vakantiewoning is uitgerust met energiezuinige lucht-naar-lucht-warmtepomp. De vakantiewoning heft Wasmachine. Wasdroge. Vriezer capaciteit van 100 liter. Verder pelletkachel.
Buiten
De vakantiewoning is gelegen op een 1186 m² groot natuural grond. Afstand tot de zee 13000 m. Afstand tot de fjord 500 m. Dichtstbijzijnde winkel 600 m. Bij de vakantiewoning hoort terras. Daarnaast is er een overdekt terras. Buitendouche. Parkeerplaats bij het huis.
Slaapomstandigheden
Er zijn in totaal 4 slaapkamers. De slaapplaatsen zijn als volgt verdeeld: 6 slaapplaatsen in tweepersoonsbedden.1 slaapplaats in eenpersoonsbed. 2 van deze slaapplaatsen bevinden zich in de bijgebouw.
Keuken
De keuken is uitgerust met koelkast Es is 5 gaspitten, heteluchtoven, magnetron en vaatwasser.
Douche en toilet
Er is 1 badkamer met douchehok en 1 toilet.. Er is vloerverwarming in 1 badkamer.
Bubbelbad
Het buitenbubbelbad (standwater) biedt ontspanning aan 5 personen.
Multimedia
In de vakantiewoning is aanwezig 2 televisies.1 Chromecast.Tv via streaming. Tenminste 4 deense zenders. 1-3 duitse zenders. Draadloos internet.
Goed om te weten
Geen verhuur aan jeugdgroepen waar iedereen tussen de 15 en 25 jaar oud is. Roken niet toegestaan. Bij overtreding van het verbod wordt een boete van minimaal EUR 420,- in rekening gebracht.
Vakantiehuis is geschikt voor 7 personen. De vakantiewoning heeft een oppervlakte van 93 m2 en is gebouwd in 1971. In 2009 is de vakantiewoning volledig renoveerd. In 2024 ondergingen de vakantiewoning een gedeeltelijke renovatie. Het is toegestaan om 1 huisdieren mee te nemen. De vakantiewoning is uitgerust met energiezuinige lucht-naar-lucht-warmtepomp. De vakantiewoning heft Wasmachine. Wasdroge. Vriezer capaciteit van 100 liter. Verder pelletkachel.
Buiten
De vakantiewoning is gelegen op een 1186 m² groot natuural grond. Afstand tot de zee 13000 m. Afstand tot de fjord 500 m. Dichtstbijzijnde winkel 600 m. Bij de vakantiewoning hoort terras. Daarnaast is er een overdekt terras. Buitendouche. Parkeerplaats bij het huis.
Slaapomstandigheden
Er zijn in totaal 4 slaapkamers. De slaapplaatsen zijn als volgt verdeeld: 6 slaapplaatsen in tweepersoonsbedden.1 slaapplaats in eenpersoonsbed. 2 van deze slaapplaatsen bevinden zich in de bijgebouw.
Keuken
De keuken is uitgerust met koelkast Es is 5 gaspitten, heteluchtoven, magnetron en vaatwasser.
Douche en toilet
Er is 1 badkamer met douchehok en 1 toilet.. Er is vloerverwarming in 1 badkamer.
Bubbelbad
Het buitenbubbelbad (standwater) biedt ontspanning aan 5 personen.
Multimedia
In de vakantiewoning is aanwezig 2 televisies.1 Chromecast.Tv via streaming. Tenminste 4 deense zenders. 1-3 duitse zenders. Draadloos internet.
Goed om te weten
Geen verhuur aan jeugdgroepen waar iedereen tussen de 15 en 25 jaar oud is. Roken niet toegestaan. Bij overtreding van het verbod wordt een boete van minimaal EUR 420,- in rekening gebracht.
7 nachten
Vanaf
€ 448,-
Optionele schoonmaak: EUR 169,-
Prijzen en kalender
Prijs
Periode
- Aankomst
- Vertrek
- Duur
- 1 week
Personen
Tot 7 personen
Let op
Aankomst is niet geselecteerd.