Ruim vakantiehuis dichtbij zee in Strøby
Garderhøjen - Strøby Ladeplads - 4671 - Strøby
Objectnr: 121-92-8019
Ruim vakantiehuis in Strøby, Denemarken, vlak bij zee met moderne voorzieningen.
Beschrijving
Inrichting
Vakantiehuis is geschikt voor 8 personen. De vakantiewoning heeft een oppervlakte van 124 m2 en is gebouwd in 1986. In 2020 ondergingen de vakantiewoning een gedeeltelijke renovatie. Het is niet toegestaan om huisdieren mee te nemen. De vakantiewoning is uitgerust met 2 energiezuinige lucht-naar-lucht-warmtepompen. De vakantiewoning heft Wasmachine. Wasdroge. Vriezer capaciteit van 60 liter. Verder pelletkachel. Voor de kleintjes 1 stukken Kinderstoel.
Buiten
De vakantiewoning is gelegen op een 1194 m² groot aangelegde tuin. Afstand tot de zee 300 m. Dichtstbijzijnde winkel 4600 m. Bij de vakantiewoning hoort terras.Vuurplaats. Barbecue. Parkeerplaats bij het huis.
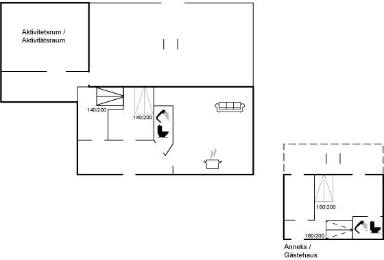
Activiteitenruimte
Activiteitenruimte. Biljart.Dart.
Slaapomstandigheden
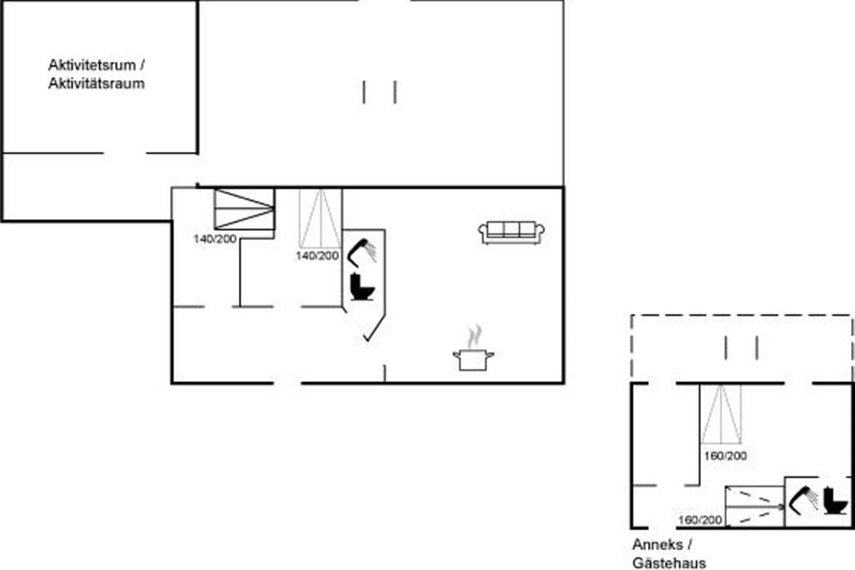
Er zijn in totaal 3 slaapkamers. De slaapplaatsen zijn als volgt verdeeld: 6 slaapplaatsen in tweepersoonsbedden. 2 slaapplaatsen in slaapbanken (tweepersoons). 4 van deze slaapplaatsen bevinden zich in de bijgebouw. Verder is kinderbed ter beschikking.
Keuken
De keuken is uitgerust met koelkasten, mini-oven, heteluchtoven, magnetron, Airfryer en vaatwasser. In de bijgebouw is een extra koelkasten aanwezig.
Douche en toilet
Er is 2 badkamers met douchehok en 2 toiletten.
Multimedia
In de vakantiewoning is aanwezig 1 smart-tv.1 Chromecast.Tv via streaming. 1-3 deense zenders. 1-3 sweedse zenders. 1-3 duitse zenders. Draadloos internet.
Goed om te weten
Geen verhuur aan jeugdgroepen waar iedereen tussen de 15 en 25 jaar oud is. Roken niet toegestaan. Bij overtreding van het verbod wordt een boete van minimaal EUR 420,- in rekening gebracht.
Vakantiehuis is geschikt voor 8 personen. De vakantiewoning heeft een oppervlakte van 124 m2 en is gebouwd in 1986. In 2020 ondergingen de vakantiewoning een gedeeltelijke renovatie. Het is niet toegestaan om huisdieren mee te nemen. De vakantiewoning is uitgerust met 2 energiezuinige lucht-naar-lucht-warmtepompen. De vakantiewoning heft Wasmachine. Wasdroge. Vriezer capaciteit van 60 liter. Verder pelletkachel. Voor de kleintjes 1 stukken Kinderstoel.
Buiten
De vakantiewoning is gelegen op een 1194 m² groot aangelegde tuin. Afstand tot de zee 300 m. Dichtstbijzijnde winkel 4600 m. Bij de vakantiewoning hoort terras.Vuurplaats. Barbecue. Parkeerplaats bij het huis.
Activiteitenruimte
Activiteitenruimte. Biljart.Dart.
Slaapomstandigheden
Er zijn in totaal 3 slaapkamers. De slaapplaatsen zijn als volgt verdeeld: 6 slaapplaatsen in tweepersoonsbedden. 2 slaapplaatsen in slaapbanken (tweepersoons). 4 van deze slaapplaatsen bevinden zich in de bijgebouw. Verder is kinderbed ter beschikking.
Keuken
De keuken is uitgerust met koelkasten, mini-oven, heteluchtoven, magnetron, Airfryer en vaatwasser. In de bijgebouw is een extra koelkasten aanwezig.
Douche en toilet
Er is 2 badkamers met douchehok en 2 toiletten.
Multimedia
In de vakantiewoning is aanwezig 1 smart-tv.1 Chromecast.Tv via streaming. 1-3 deense zenders. 1-3 sweedse zenders. 1-3 duitse zenders. Draadloos internet.
Goed om te weten
Geen verhuur aan jeugdgroepen waar iedereen tussen de 15 en 25 jaar oud is. Roken niet toegestaan. Bij overtreding van het verbod wordt een boete van minimaal EUR 420,- in rekening gebracht.
7 nachten
Vanaf
€ 538,-
Optionele schoonmaak: EUR 173,-
Prijzen en kalender
Prijs
Periode
- Aankomst
- Vertrek
- Duur
- 1 week
Personen
Tot 8 personen
Let op
Aankomst is niet geselecteerd.