Frederiksbergvej - Sydfyn - 5600 - Faaborg
Objectnr: 562-507704
Beschrijving
De beschrijving is helaas niet beschikbaar in het Nederlands. Bekijk de tekst hieronder in het Engels of bekijk de automatisch vertaalde tekst in Nederlands.
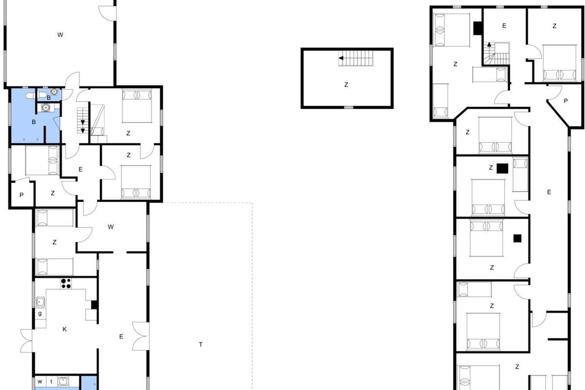
Holiday home for 28 people with a fascinating history in quiet surroundings 7 km from Faaborg. The property is located next to open fields and close to the forest. This property is a former train station. The house is in 2 levels and in the ground floor is the former waiting room converted into a living room with fireplace and a dining room with pantry kitchen. The large hall was where the ticket sales took place but is now furnished with sofas. There is also a well-equipped kitchen with dining area, 3 bathrooms, a guest toilet and 4 bedrooms and a room in a loft with 8 matrasses in the ground floor. The 1st floor contains 7 bedrooms. In connection with the entrance area is a terrace with a large barbecue (incl. gas consumption) and a wood-fired pizza oven. There is an area that can be used for both hockey and streetfootball in the garden. Hockey Equipment is available in the house.
In the summertime, the veteran train comes by of the old, disused railway between Assens and Faaborg. You can get on the train right outside the house and get a truly unique holiday experience. It can be access to the workshop after agreed with the owner.It is possible to rent a special train all year round for you and your guests. You will be picked up at Hostel California's own train platform. You can go on a picnic to Pipstorn Forest, have a beer in the square in Faaborg or visit Corinth and later be driven directly back to the house. Please contact the agency for further information.
The area
The idyllic harbour town Faaborg is not far away from the area with nice shops, cultural sights, restaurants and an indoor swimming-pool. South Funen is known for its very special and hilly nature with Svanninge Bakker, the so-called Funen Alps, and the beautiful and unique archipelago. Take a day trip to the islands of Lyø, Avernakø or Ærø. The ferry leaves daily from the harbour in Faaborg. Egeskov Castle, which is one of Funen´s largest attractions, is also worth a visit as well as Odense, Funen´s largest town, with many sights and attractions.
In the summertime, the veteran train comes by of the old, disused railway between Assens and Faaborg. You can get on the train right outside the house and get a truly unique holiday experience. It can be access to the workshop after agreed with the owner.It is possible to rent a special train all year round for you and your guests. You will be picked up at Hostel California's own train platform. You can go on a picnic to Pipstorn Forest, have a beer in the square in Faaborg or visit Corinth and later be driven directly back to the house. Please contact the agency for further information.
The area
The idyllic harbour town Faaborg is not far away from the area with nice shops, cultural sights, restaurants and an indoor swimming-pool. South Funen is known for its very special and hilly nature with Svanninge Bakker, the so-called Funen Alps, and the beautiful and unique archipelago. Take a day trip to the islands of Lyø, Avernakø or Ærø. The ferry leaves daily from the harbour in Faaborg. Egeskov Castle, which is one of Funen´s largest attractions, is also worth a visit as well as Odense, Funen´s largest town, with many sights and attractions.
7 nachten
Vanaf
€ 2.283,-
Incl. schoonmaak en verzekering
Prijzen en kalender
Prijs
Periode
- Aankomst
- Vertrek
- Duur
- 1 week
Personen
Tot 28 personen
Let op
Aankomst is niet geselecteerd.