Nordsøvej - Vorupør - 7700 - Thisted

Objectnr: 089-1369
  • Personen
    6 personen
  • Slaapkamers3 Slaapkamers
  • Badkamers1 Badkamers
  • Woonoppervlakte61 m² Woonoppervlakte
  • HuisdierenNiet toegestaan Huisdieren

Beschrijving

De beschrijving is helaas niet beschikbaar in het Nederlands. Bekijk de tekst hieronder in het Duits of bekijk de automatisch vertaalde tekst in Nederlands.

Mitten im stimmungsvollen Küstenort Nr. Vorupør findest du dieses wirklich gemütliche Ferienhaus in der Nordsøvej 94 – ein Ort, an dem Charme, Wärme und eine zentrale Lage perfekt zusammenspielen. Hier sind die idealen Rahmenbedingungen für einen erholsamen Urlaub geschaffen, bei dem du das Auto stehen lassen und stattdessen Strand, Kaufmannsladen und das lebendige Ortszentrum bequem zu Fuß erreichen kannst. Das Ferienhaus lädt zu Ruhe und Nähe ein – ganz gleich, ob du mit der Familie, als Paar oder mit guten Freunden reist – und die helle Einrichtung sorgt vom ersten Moment an für eine freundliche und entspannte Atmosphäre.

Willkommen in deinem Ferienhaus
Schon beim Betreten des Ferienhauses wirst du von einer warmen und einladenden Stimmung empfangen, in der das Licht die Räume durchflutet und den gemütlichen Charakter des Hauses unterstreicht. Die Einrichtung ist in hellen Farbtönen gehalten und vermittelt sofort echtes Urlaubsgefühl. Hier ist Platz für gemeinsames Beisammensein ebenso wie für ruhige Momente für dich selbst. Man stellt sich mühelos lange Morgen mit einer Tasse Kaffee am Esstisch vor, während der Tag langsam Gestalt annimmt, oder entspannte Abende, an denen ihr euch nach einem Tag am Meer zusammensetzt. Das Ferienhaus ist wie geschaffen für genau diese Augenblicke, in denen das Tempo gedrosselt wird und Zeit für Gespräche, Gesellschaftsspiele und pure Entspannung bleibt. Zu jeder Jahreszeit fühlt man sich hier sofort wohl – begleitet von einer angenehmen Wärme und einer Atmosphäre, die zum Abschalten einlädt.

Genieße das Leben im Freien
Auch das Leben unter freiem Himmel kommt bei diesem Ferienhaus in der Nordsøvej 94 nicht zu kurz. Die schönen Terrassenbereiche laden dazu ein, den Urlaub nach draußen zu verlegen, sobald das Wetter es zulässt – und oft auch noch darüber hinaus. Besonders die überdachte Terrasse ist ein echtes Highlight, denn hier kannst du windgeschützt sitzen und die Abende genießen, selbst wenn der Tau fällt oder eine frische Brise vom Meer weht. Mit dem Terrassenheizer lässt sich der Abend ganz entspannt verlängern, während ihr den Tag Revue passieren lasst. Die Terrassen bieten sowohl sonnige als auch schattige Plätze, sodass du immer einen Ort findest, der zu deiner Stimmung passt. Beginne den Tag mit dem ersten Kaffee an der frischen Luft und lasse ihn ruhig ausklingen, während sich die entspannte Ferienatmosphäre um euch legt.

Entdecke deine Umgebung
Dank der zentralen Lage des Ferienhauses bist du mitten im Herzen von Vorupør und dennoch ganz nah an der Natur. Ein kurzer Spaziergang führt dich hinunter zum Strand und zur Nordsee, wo du das Rauschen der Wellen hörst, den Sand zwischen den Zehen spürst und die charakteristischen Badehäuser bewundern kannst, für die Vorupør bekannt ist. Im Ort findest du gemütliche Cafés, kleine Geschäfte und den lokalen Kaufmann – perfekt für entspannte Ferientage ohne lange Wege. Gleichzeitig bist du Teil des Nationalparks Thy, der mit beeindruckender Natur, Dünenlandschaften sowie hervorragenden Wander- und Radwegen lockt. Dieses Ferienhaus ist der ideale Ausgangspunkt, um das authentische Küstenleben und die raue, wunderschöne Natur Thy’s hautnah zu erleben.

Denk daran: Bei kannst du jederzeit Bollerwagen, Hochstühle und Kinderbetten ausleihen. Du kannst sie direkt im Büro abholen und nach deinem Urlaub wieder dort zurückgeben.


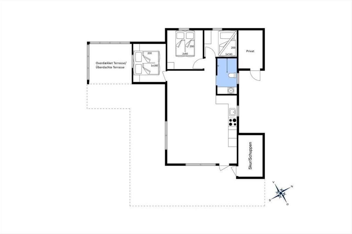
Raumaufteilung

  • Schlafzimmer
    • Einzelbett - 1x80x200
    • Einzelbett - 1x80x200
  • Schlafzimmer
    • Doppelbett - 1x180x200
  • Schlafzimmer
    • Doppelbett - 1x140x200
7 nachten
Vanaf 450,-
Incl. schoonmaak en verzekering

Prijzen en kalender

Duur
Aankomst
Volgende
   Kijk of het object beschikbaar is op de geselecteerde datum
Vrij
Bezet
   Aankomst mogelijk

Prijs

Periode
Aankomst
Vertrek
Duur
1 week
Personen
Tot 6 personen

Let op

Aankomst is niet geselecteerd.
Contract- en huurvoorwaarden

Indeling & inrichting

Ligging & omgeving

Locatie pin Kaart Denemarken

Klantenservice

Stel ons een vraag over dit object

Klik hier om ons een vraag over dit object te sturen.