Comfortabel vakantiehuis in natuur
Knottivej - Vorupør - 7700 - Thisted
Objectnr: 130-B18001
Ontdek dit ideale vakantiehuis middenin het prachtige Nationaal Park Thy, waar comfort en natuur samenkomen.
Beschrijving
Midden in het Nationaal Park Thy heet dit ruime en comfortabele vakantiehuis u van harte welkom.
Dit vakantiehuis is het ideale vakantiehuis voor een gezin dat graag tijd wil doorbrengen in een ruim, comfortabel en licht huis. Het lichtovergoten huis biedt u alles wat u zich kunt wensen tijdens uw ontspannen verblijf. Maak het uzelf gemakkelijk op de banken, bij het knapperend haardvuur voor de tv, speel kaarten aan de eettafel of hanteer de kooklepels in de grote keuken. U kunt zich ook terugtrekken in het kleine bijgebouw en in alle rust een goed boek lezen. U kunt ook uw vakantiemaaltijden nuttigen op het mooie, zonnige terras en daar de avonden laten verstrijken.
U kunt de dagen doorbrengen op het nabijgelegen zandstrand. Op het zandstrand waait u een lekker briesje tegemoet. Maak een wandeling langs het lange strand en verzamel de mooiste stenen en schelpen die u kunt vinden. Voor uw verfrissing kunt u een duik nemen in het water van de Noordzee en u laten meevoeren door de golven. Uw accommodatie ligt midden in het prachtige Nationaal Park Thy. Verken het te voet of op de fiets en laat u betoveren door de schoonheid van de natuur. Het is de ideale plek om te ontspannen.
Breng een onvergetelijke tijd door in het prachtige landschap van Thy National Park!
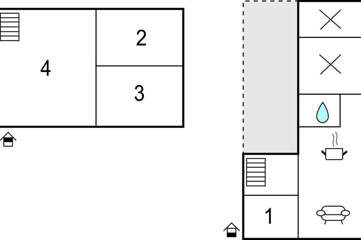
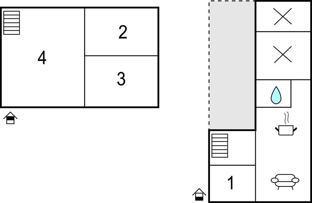
Vakantiehuis
Slaapkamer (nr. 1) - 2 Slaapplaatsen. (2-persoonsbed(den)).
Slaapkamer (nr. 2) - 1 Slaapplaatsen. (1-persoonsbed(den)).
Slaapkamer (nr. 3) - 1 Slaapplaatsen. (1-persoonsbed(den)).
Slaapkamer (nr. 4) - 1 Slaapplaatsen. (1-persoonsbed(den)).
Woonkamer
Keuken
Badkamer (nr. 1) - Toilet: warm en koud water. Douche
Terras of vergelijkbaar - Open terras
Dit vakantiehuis is het ideale vakantiehuis voor een gezin dat graag tijd wil doorbrengen in een ruim, comfortabel en licht huis. Het lichtovergoten huis biedt u alles wat u zich kunt wensen tijdens uw ontspannen verblijf. Maak het uzelf gemakkelijk op de banken, bij het knapperend haardvuur voor de tv, speel kaarten aan de eettafel of hanteer de kooklepels in de grote keuken. U kunt zich ook terugtrekken in het kleine bijgebouw en in alle rust een goed boek lezen. U kunt ook uw vakantiemaaltijden nuttigen op het mooie, zonnige terras en daar de avonden laten verstrijken.
U kunt de dagen doorbrengen op het nabijgelegen zandstrand. Op het zandstrand waait u een lekker briesje tegemoet. Maak een wandeling langs het lange strand en verzamel de mooiste stenen en schelpen die u kunt vinden. Voor uw verfrissing kunt u een duik nemen in het water van de Noordzee en u laten meevoeren door de golven. Uw accommodatie ligt midden in het prachtige Nationaal Park Thy. Verken het te voet of op de fiets en laat u betoveren door de schoonheid van de natuur. Het is de ideale plek om te ontspannen.
Breng een onvergetelijke tijd door in het prachtige landschap van Thy National Park!
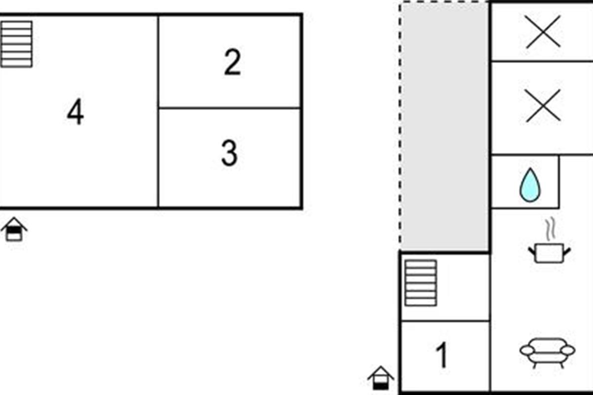
Vakantiehuis
Slaapkamer (nr. 1) - 2 Slaapplaatsen. (2-persoonsbed(den)).
Slaapkamer (nr. 2) - 1 Slaapplaatsen. (1-persoonsbed(den)).
Slaapkamer (nr. 3) - 1 Slaapplaatsen. (1-persoonsbed(den)).
Slaapkamer (nr. 4) - 1 Slaapplaatsen. (1-persoonsbed(den)).
Woonkamer
Keuken
Badkamer (nr. 1) - Toilet: warm en koud water. Douche
Terras of vergelijkbaar - Open terras
De prijs kan niet worden berekend met de geselecteerde periode.
Prijzen en kalender
Duur
Aankomst
-
december 2025
ma di wo do vr za zo 49 1 2 3 4 5 6 7 50 8 9 10 11 12 13 14 51 15 16 17 18 19 20 21 52 22 23 24 25 26 27 28 1 29 30 31 2 -
januari 2026
ma di wo do vr za zo 1 1 2 3 4 2 5 6 7 8 9 10 11 3 12 13 14 15 16 17 18 4 19 20 21 22 23 24 25 5 26 27 28 29 30 31 6
Kijk of het object beschikbaar is op de geselecteerde datum
Vrij
Bezet
Aankomst mogelijk
Prijs
Periode
- Aankomst
- Vertrek
- Duur
Personen
Tot 5 personen
Let op
Aankomst is niet geselecteerd.
Duur is niet geselecteerd.
1 externe beoordeling